
Immeuble de rapport de 2 unités louées à Bastogne
En option - prix sur demande




Afficher +12 photo(s)












Bâtiment de rapport
3F
6 chambre(s)
2 salle(s) de bain(s)
208 m² de surface habitable
98 m² de surface de terrain
B
Code du bien : 1436251
Description du bien
Spécifications
Caractéristiques
Général
Surface habitable
208.47m²
Superficie du terrain
98.00m²
Largeur du terrain
8.00m
Type de superficie
Brut
Orientation terrain
Sud-Ouest
Façade orientation
Nord-Est
Environnement
Zone touristique
A proximité d'écoles
A proximité des transports en commun
Routes d'acces
Revenu cadastral net
€1319,00
Chauffage
Type
Chauffage central
Radiateurs
Radiateurs
Poêle à pellet
Combustible chauffage
Mazout
Divers
Menuiserie
PVC
Double vitrage
Isolation
Toit
Vitrage
Châssis
Eau chaude
Boiler électrique
Boiler sur chauffage central
Bâtiment
Année de construction
de 1900 à 1918
Ascenseur disponible
Non
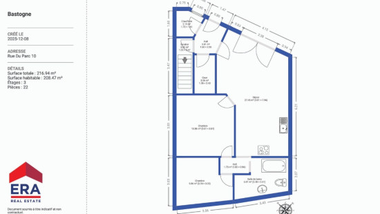
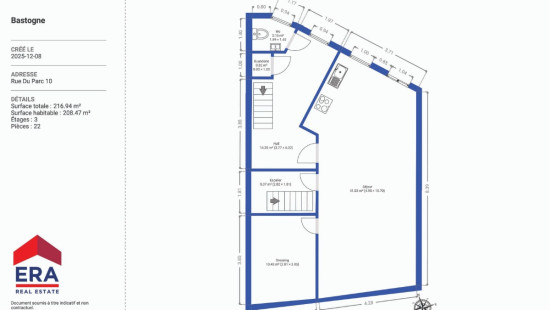
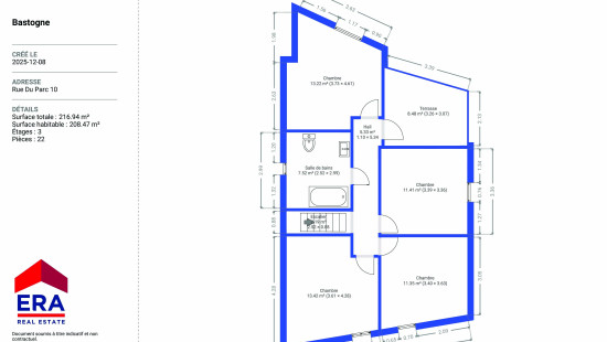
Détails
Chaufferie
Hall
Cave
Living
Chambre à coucher
Chambre à coucher
Salle de bains
Hall
Chambre à coucher
Terrasse
Salle de bains
Chambre à coucher
Chambre à coucher
Chambre à coucher
Hall
Living
Dressing
Hall
Buanderie
Toilette
Informations techniques et mentions légales
Général
Patrimoine classé
Non
Repris dans l’inventaire du patrimoine
Non
Énergie et électricité
Inspection électrique
Attestation électrique - Conforme
Raccordements
Electricité
Raccordements aux égouts
Eau de ville
Certificat PEB
Oui
Classe énergétique
B
Niveau E
B
Numéro de certificat
20250605034315
Consommation spécifique d'énergie calculée
103
Emission de CO2
26.00
Consommation totale d'énergie calculée
15835
Information urbanistique
Permis d'urbanisme
Bien construit avant 1962
obligation d'urbanisme
Oui
Dans l'inventaire des locaux inexploités
Non
Objet du plan de alignement
Non
mesure de récupération
Geen rechterlijke herstelmaatregel of bestuurlijke maatregel opgelegd
Autorisation de lotissement
Non
Droit de préemption
Non
Obligation de rénovation
Niet van toepassing/Non-applicable
En zone sensible à l'eau
Niet van toepassing/Non-applicable
Fermer
