
Charming 2-bedroom house with study in Amay
Starting from € 209 000




Show +26 photo(s)


























House
Semi-detached
2 bedrooms (3 possible)
1 bathroom(s)
90 m² habitable sp.
542 m² ground sp.
E
Property code: 1432462
Description of the property
Specifications
Characteristics
General
Habitable area (m²)
89.90m²
Soil area (m²)
542.00m²
Exploitable surface (m²)
141.00m²
Surface type
Net
Plot orientation
South-East
Orientation frontage
North-West
Surroundings
Nightlife area
Near school
Near park
Taxable income
€733,00
Heating
Heating type
Central heating
Individual heating
Heating elements
Built-in fireplace
Radiators with thermostatic valve
Condensing boiler
Heating material
Wood
Gas
Miscellaneous
Joinery
PVC
Double glazing
Isolation
Detailed information on request
Warm water
Water heater on central heating
Building
Year built
1966
Miscellaneous
Roller shutters
Lift present
No
Details
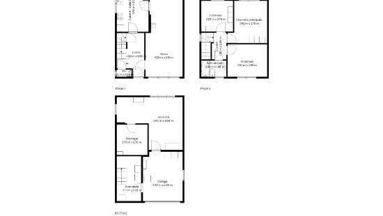
Entrance hall
Toilet
Living room, lounge
Dining room
Kitchen
Night hall
Office
Bedroom
Bedroom
Bathroom
Attic
Garage
Basement
Laundry area
Garden
Parking space
Parking space
Parking space
Technical and legal info
General
Protected heritage
No
Recorded inventory of immovable heritage
No
Energy & electricity
Electrical inspection
Inspection report pending
Utilities
Gas
Electricity
Rainwater well
Sewer system connection
Cable distribution
City water
Telephone
Internet
Energy performance certificate
Yes
Energy label
E
E-level
E
Certificate number
20251102009900
Calculated specific energy consumption
371
CO2 emission
68.00
Calculated total energy consumption
40255
Planning information
Urban Planning Permit
Permit issued
Urban Planning Obligation
No
In Inventory of Unexploited Business Premises
No
Subject of a Redesignation Plan
No
Summons
Geen rechterlijke herstelmaatregel of bestuurlijke maatregel opgelegd
Subdivision Permit Issued
No
Pre-emptive Right to Spatial Planning
No
Urban destination
La zone d'habitat
Flood Area
Property situated wholly or partly in an area susceptible to flooding
Renovation Obligation
Niet van toepassing/Non-applicable
In water sensetive area
Niet van toepassing/Non-applicable
Close
