
Beautiful 3 bedroom triplex for sale in Uccle
In option - price on demand




Show +26 photo(s)


























House
2 facades / enclosed building
3 bedrooms
2 bathroom(s)
175 m² habitable sp.
150 m² ground sp.
Property code: 1371618
Description of the property
Specifications
Characteristics
General
Habitable area (m²)
175.00m²
Soil area (m²)
150.00m²
Surface type
Brut
Plot orientation
North
Orientation frontage
South
Surroundings
Commercial district
Near school
Close to public transport
Comfort guarantee
Basic
Heating
Heating type
Individual heating
Heating elements
Photovoltaic panel
Underfloor heating
Heating material
Solar panels
Gas
Miscellaneous
Joinery
Aluminium
Double glazing
Isolation
Façade insulation
Mouldings
Warm water
Separate water heater, boiler
Building
Year built
2019
Floor
0
Amount of floors
3
Miscellaneous
Alarm
Security door
Lift present
No
Details
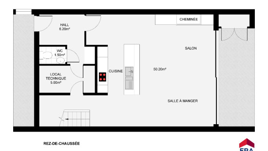
Entrance hall
Living room, lounge
Kitchen
Toilet
Night hall
Toilet
Bathroom
Bedroom
Bedroom
Bedroom
Garden
Terrace
Terrace
Laundry area
Bathroom
Technical and legal info
General
Protected heritage
No
Recorded inventory of immovable heritage
No
Energy & electricity
Electrical inspection
Inspection report - compliant
Utilities
Gas
Electricity
Sewer system connection
Cable distribution
Photovoltaic panels
City water
Telephone
Driving power
ISDN connection
Internet
Energy performance certificate
Yes
Energy label
B
Certificate number
1704603-N-1-1-2-1
Calculated specific energy consumption
62
CO2 emission
10.00
Calculated total energy consumption
10936
Planning information
Urban Planning Obligation
No
In Inventory of Unexploited Business Premises
No
Subject of a Redesignation Plan
No
Subdivision Permit Issued
No
Pre-emptive Right to Spatial Planning
No
Flood Area
Property not located in a flood plain/area
Renovation Obligation
Niet van toepassing/Non-applicable
In water sensetive area
Niet van toepassing/Non-applicable
Close
