2 bedroom chalet for sale in Hastière

Sold

Description of the property

The ERA B-LUX agency is pleased to present this magnificent chalet located in an exceptional natural setting in the Mosane valley. This 123 m² chalet will seduce you with its warm atmosphere, spacious rooms and peaceful surroundings. Ideal as a primary or secondary residence, or as a rental investment.

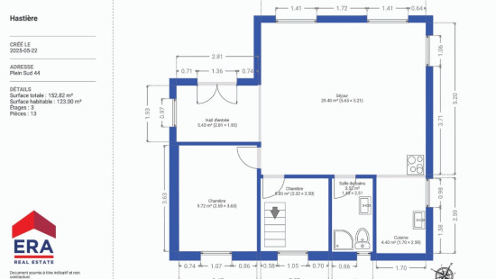
Comprising an open-plan living room with dining area and kitchen, 2 bedrooms with possibility of a 3rd, bathroom, garden, terrace, private parking space, garage, cellars, garden, terrace.

Offer from 195.000€.
Are you looking for peace and quiet and a nature lover? 
Don't miss this rare opportunity to acquire a chalet in Hastière.
Are you interested? Don't hesitate to contact ERA B-LUX on 084/311.888.

Specifications

Characteristics

General

Habitable area (m²)
123.00m²
Soil area (m²)
642.00m²
Built area (m²)
152.82m²
Width surface (m)
19.00m
Surface type
Brut
Plot orientation
South-West
Orientation frontage
North
Surroundings
Secluded
Rural
Close to public transport
Access roads
Taxable income
€394,00

Heating

Heating type
No heating
Heating elements
Built-in fireplace
Heating material
Undetermined

Miscellaneous

Joinery
Wood
Double glazing
Isolation
Detailed information on request
Warm water
Electric boiler

Building

Year built
1977
Lift present
No

Bedroom

Calculated surface area
22 m²
1 bedroom(s) possible

Night hall

Calculated surface area
14 m²
1 bedroom(s) possible

Living room, lounge

Calculated surface area
29 m²

Entrance hall

Calculated surface area
5 m²

Bedroom

Calculated surface area
10 m²
1 bedroom(s) possible

Bedroom

Calculated surface area
6 m²
1 bedroom(s) possible

Bathroom

Calculated surface area
4 m²

Kitchen

Calculated surface area
4 m²

Garage

Calculated surface area
30 m²

Basement

Calculated surface area
17 m²

Basement

Calculated surface area
8 m²

Laundry area

Calculated surface area
3 m²

Toilet

Calculated surface area
1 m²

Garden

Calculated surface area
642 m²

General

Protected heritage
No
Recorded inventory of immovable heritage
No

Energy & electricity

Utilities
Electricity
Septic tank
City water
Energy label
E
Calculated specific energy consumption
400

Planning information

Urban Planning Obligation
Yes
In Inventory of Unexploited Business Premises
No
Subject of a Redesignation Plan
No
Summons
Geen rechterlijke herstelmaatregel of bestuurlijke maatregel opgelegd
Subdivision Permit Issued
No
Pre-emptive Right to Spatial Planning
No
Renovation Obligation
Niet van toepassing/Non-applicable
In water sensetive area
Niet van toepassing/Non-applicable
Close
Julien Pleinnevaux
Plein Sud 44 , 5540 Hastière