
House
Detached / open construction
2 bedrooms
1 bathroom(s)
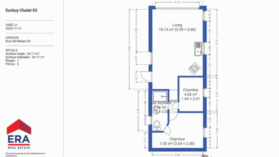
34 m² habitable sp.
400 m² ground sp.
Property code: 1461087
Specifications
Characteristics
General
Habitable area (m²)
34.00m²
Soil area (m²)
400.00m²
Surface type
Brut
Plot orientation
South-West
Orientation frontage
North-East
Surroundings
Tourist zone
Secluded
Green surroundings
Rural
Heating
Heating type
Individual heating
Heating elements
Convectors
Heating material
Electricity
Miscellaneous
Joinery
PVC
Double glazing
Isolation
Mouldings
Warm water
Electric boiler
Building
Lift present
No
Details
Garden
Living room, lounge
Kitchen
Hall
Bedroom
Bedroom
Bathroom
Technical and legal info
General
Protected heritage
No
Recorded inventory of immovable heritage
No
Energy & electricity
Utilities
Electricity
City water
Treatment plant
Energy label
-
Planning information
Urban Planning Permit
No permit issued
Urban Planning Obligation
No
In Inventory of Unexploited Business Premises
No
Subject of a Redesignation Plan
No
Subdivision Permit Issued
No
Pre-emptive Right to Spatial Planning
No
Flood Area
Property not located in a flood plain/area
Renovation Obligation
Niet van toepassing/Non-applicable
In water sensetive area
Niet van toepassing/Non-applicable
Close











