Charmante Maison mitoyenne avec jardin !

Starting from € 219 000

Description of the property

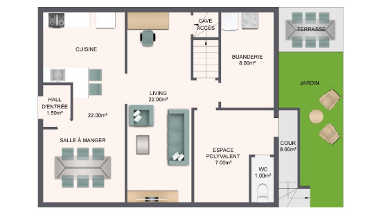
Patrick Bollue (IPI516.745) of ERA Real Estate presents this charming, partially renovated house located in Amay, close to schools, public transportation, and shops. The house offers a warm atmosphere and a practical layout. Situated on a quiet street, it features a 60 m² garden and a 12 m² terrace, perfect for enjoying the outdoors. The location provides easy access to amenities on foot or by bike. Main rooms: • Living room (22 m²) with plenty of natural light • Kitchen (22 m²) with direct access to the garden • Bathroom (12 m²) with a functional layout • Two bedrooms (16 m² and 12 m²) • Multi-purpose room (7 m²) for an office or leisure activities • Laundry room (8 m²) and half-bath (1 m²) • Attic (20 m²) offering storage space or potential for a future bedroom • Garden (60 m²) and terrace (12 m²) for relaxation. TECHNICAL SPECS: EPC D (n-20240801005314), ELECTRICAL IN COMPLIANCE, PVC double-glazed windows, gas and pellet heating, water softener. Building insurance: to be determined. PRICE: 219,000 euros (possible registration fees 3%). Currently rented for 948€ excluding utilities. Contact us today to schedule a viewing at 043/720.720

Specifications

Characteristics

General

Habitable area (m²)
102.00m²
Soil area (m²)
180.00m²
Exploitable surface (m²)
130.00m²
Surface type
Net
Surroundings
Near school
Close to public transport
Near park
Taxable income
€585,00

Heating

Heating type
Central heating
Individual heating
Heating elements
Radiators
Central heating boiler, furnace
Pelletkachel
Heating material
Gas
Pellets

Miscellaneous

Joinery
PVC
Double glazing
Isolation
See energy performance certificate
Warm water
Electric boiler

Building

Year built
1946
Amount of floors
2
Miscellaneous
Roller shutters
Lift present
No

Living room, lounge

Calculated surface area
22 m²

Kitchen

Calculated surface area
22 m²

Entrance hall

Calculated surface area
2 m²

Laundry area

Calculated surface area
8 m²

Multi-purpose room

Calculated surface area
7 m²

Toilet

Calculated surface area
1 m²

Terrace

Calculated surface area
12 m²

Garden

Calculated surface area
60 m²

Courtyard

Calculated surface area
8 m²

Night hall

Calculated surface area
1 m²

Bedroom

Calculated surface area
16 m²
1 bedroom(s) possible

Bedroom

Calculated surface area
12 m²
1 bedroom(s) possible

Bathroom

Calculated surface area
12 m²

Attic

Calculated surface area
20 m²

General

Protected heritage
No
Recorded inventory of immovable heritage
No

Energy & electricity

Electrical inspection
Inspection report - compliant
Utilities
Gas
Electricity
Natural gas present in the street
Sewer system connection
Cable distribution
City water
Telephone
Internet
Water softener
Energy performance certificate
Yes
Energy label
D
EPB
D
E-level
D
Certificate number
20240801005314
EPB description
D
Calculated specific energy consumption
313
CO2 emission
60.00
Calculated total energy consumption
37832

Planning information

Urban Planning Permit
Permit issued
Urban Planning Obligation
No
In Inventory of Unexploited Business Premises
No
Subject of a Redesignation Plan
No
Summons
No judicial recovery measure or administrative measure imposed
Subdivision Permit Issued
No
Pre-emptive Right to Spatial Planning
No
Urban destination
La zone d'habitat
Flood Area
Property not located in a flood plain/area
Renovation Obligation
Niet van toepassing/Non-applicable
In water sensetive area
Niet van toepassing/Non-applicable
Close
Patrick Bollue
Rue Saint-Joseph 3 , 4540 Amay