Gerenoveerde woning met 4 slaapkamers en tuin

€ 1 499/month

Specifications

Characteristics

General

Habitable area (m²)
158.00m²
Soil area (m²)
569.00m²
Arable area (m²)
158.00m²
Surface type
Brut
Surroundings
Busy location
Close to public transport
Access roads
Monthly costs
€0.00

Heating

Heating type
Central heating
Heating elements
Radiators with thermostatic valve
Heating material
Solar panels
Gas

Miscellaneous

Joinery
Double glazing
Isolation
Glazing
Roof insulation
Warm water
Boiler on central heating

Building

Miscellaneous
Manual roller shutters
Roller shutters
Lift present
No

Bathroom

Calculated surface area
7 m²
Room items
Walk-in shower

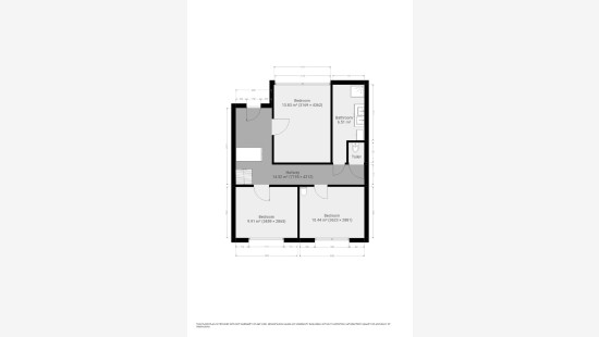
Bedroom

Calculated surface area
13 m²
1 bedroom(s) possible

Bedroom

Calculated surface area
10 m²
1 bedroom(s) possible

Bedroom

Calculated surface area
10 m²
1 bedroom(s) possible

Toilet

Bedroom

Calculated surface area
15 m²
1 bedroom(s) possible

Hall

Calculated surface area
9 m²

Toilet

Living room, lounge

Calculated surface area
22 m²

Kitchen

Calculated surface area
26 m²

Storage

Calculated surface area
4 m²

General

Protected heritage
No
Recorded inventory of immovable heritage
No

Energy & electricity

Utilities
Rainwater well
Sewer system connection
Internet
Energy performance certificate
Yes
Energy label
B
Certificate number
20240124-0003101153-RES-1
Calculated specific energy consumption
163
Calculated total energy consumption
163

Planning information

Urban Planning Permit
No permit issued
Urban Planning Obligation
No
In Inventory of Unexploited Business Premises
No
Subject of a Redesignation Plan
No
Subdivision Permit Issued
No
Pre-emptive Right to Spatial Planning
No
Urban destination
Residential area
Flood Area
Property not located in a flood plain/area
P(arcel) Score
Onbekend
G(building) Score
Onbekend
Renovation Obligation
Niet van toepassing/Non-applicable
In water sensetive area
Niet van toepassing/Non-applicable
Close
Delfine Meerschaut
Plezantstraat 320 , 9100 Sint-Niklaas