
Instapklare én energiezuinige woning te Koninksem (Tongeren)
In optie - prijs op verzoek
Video afspelen




+18 foto's weergeven


















Huis
Halfopen
2 slaapkamer(s)
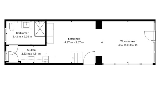
1 badkamer(s)
124 m² woonoppervlakte
430 m² grondoppervlakte
B
Pandcode: 1441779
Beschrijving van het pand
Specificaties
Kenmerken
Algemeen
Woonoppervlakte
124.00m²
Grondoppervlakte
430.00m²
Bebouwde oppervlakte
81.00m²
Breedte grond
7.80m
Type oppervlakte
Bruto
Omgeving
Groene omgeving
Omgeving school
Nabij openbaar vervoer
Nabij ziekenhuis
Kadastraal inkomen
€477,00
ERA Comfort Garantie
Basic
Verwarming
Type
Centrale verwarming
Radiator
Radiatoren
Condensatieketel
Verwarmingsmateriaal
Gas
Diversen
Schrijnwerk
PVC
Superisolerend hoogrendementsglas
Isolatie
Detailinfo op aanvraag
Warm water
Boiler op CV
Gebouw
Bouwjaar
van 1900 tot 1918
Lift aanwezig
Nee
Details
Slaapkamer
Slaapkamer
Badkamer
Keuken
Technische en juridische informatie
Algemeen
Beschermd erfgoed
Nee
Opgenomen in een inventaris van onroerend erfgoed
Nee
Energie en elektriciteit
Elektrische keuring
Keuringsverslag - Conform
Nutsvoorzieningen
Gas
Elektriciteit
Aansluiting riolering
Internet
Detailinfo op aanvraag
EPC-certificaat
Ja
Energielabel
B
Certificaatnummer
20220508-0002163223-RES-2
Berekend specifiek energieverbruik
169
Planningsinformatie
Stedenbouwkundige vergunning
Woning gebouwd voor 1962
Stedenbouwkundige verplichting
Ja
In inventaris van de niet uitgebate bedrijfsruimten
Nee
Voorwerp van rooiplan
Nee
Herstelmaatregel
Geen rechterlijke herstelmaatregel of bestuurlijke maatregel opgelegd
Verkavelingsvergunning uitgereikt
Nee
Voorkoopsrecht ruimtelijke ordening
Nee
Stedelijke bestemming
Woonuitbreidingsgebied
Overstromingsgebied
Onroerend goed, niet gelegen in een overstromingsgebied
P(erceel) score
klasse A
G(ebouw) score
klasse A
Renovatieverplichting
Niet van toepassing/Non-applicable
In watergevoelig gebied
Niet van toepassing/Non-applicable
Sluiten
