
Handelspand
Open
4 slaapkamers (8 mogelijk)
1 badkamer(s)
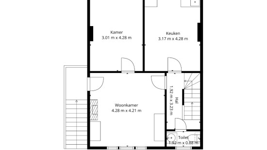
295 m² woonoppervlakte
941 m² grondoppervlakte
D
Pandcode: 1448330
Beschrijving van het pand
Specificaties
Kenmerken
Algemeen
Woonoppervlakte
295.00m²
Grondoppervlakte
941.00m²
Type oppervlakte
Bruto
Omgeving
Nabij openbaar vervoer
Invalswegen
Kadastraal inkomen
€1447,00
Verwarming
Type
Centrale verwarming
Radiator
Radiatoren
Verwarmingsmateriaal
Gas
Diversen
Schrijnwerk
Hout
Dubbele beglazing
Superisolerend hoogrendementsglas
Isolatie
Detailinfo op aanvraag
Warm water
Boiler op CV
Gebouw
Bouwjaar
1943
Lift aanwezig
Nee
Details
Appartement
Handelsruimte
Badkamer
Slaapkamer
Slaapkamer
Slaapkamer
Slaapkamer
Technische en juridische informatie
Algemeen
Beschermd erfgoed
Nee
Opgenomen in een inventaris van onroerend erfgoed
Nee
Energie en elektriciteit
Elektrische keuring
Keuringsverslag - Conform
Nutsvoorzieningen
Gas
Elektriciteit
Internet
EPC-certificaat
Ja
Energielabel
D
Certificaatnummer
20260113-0003774670-KNR-1
Berekend specifiek energieverbruik
375
Planningsinformatie
Stedenbouwkundige vergunning
Woning gebouwd voor 1962
Stedenbouwkundige verplichting
Nee
In inventaris van de niet uitgebate bedrijfsruimten
Nee
Voorwerp van rooiplan
Nee
Herstelmaatregel
Geen rechterlijke herstelmaatregel of bestuurlijke maatregel opgelegd
Verkavelingsvergunning uitgereikt
Nee
Voorkoopsrecht ruimtelijke ordening
Nee
Stedelijke bestemming
Woongebied met landelijk karakter
Overstromingsgebied
Onroerend goed, niet gelegen in een overstromingsgebied
P(erceel) score
klasse A
G(ebouw) score
klasse A
Renovatieverplichting
Niet van toepassing/Non-applicable
In watergevoelig gebied
Niet van toepassing/Non-applicable
Sluiten
































