
Opbrengsteigendom met 3 appartementen, tuin en kelderruimtes
€ 549 000




+25 foto's weergeven

























Opbrengsteigendom
Gesloten
3 slaapkamer(s)
3 badkamer(s)
201 m² woonoppervlakte
304 m² grondoppervlakte
F
Pandcode: 1403416
Beschrijving van het pand
Specificaties
Kenmerken
Algemeen
Woonoppervlakte
201.00m²
Grondoppervlakte
304.00m²
Bebouwde oppervlakte
92.00m²
Breedte grond
6.00m
Type oppervlakte
Bruto
Oriëntatie perceel
N
Omgeving
Woonkern
Omgeving school
Nabij openbaar vervoer
Invalswegen
Kadastraal inkomen
€1043,00
Verwarming
Type
Centrale verwarming
Radiator
Radiatoren
Verwarmingsmateriaal
Gas
Diversen
Schrijnwerk
Aluminium
PVC
Enkele beglazing
Dubbele beglazing
Isolatie
Detailinfo op aanvraag
Warm water
Boiler op CV
Gebouw
Bouwjaar
1951
Verdieping
0
Aantal verdiepingen
3
Lift aanwezig
Nee
Details
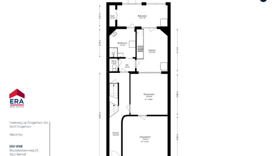
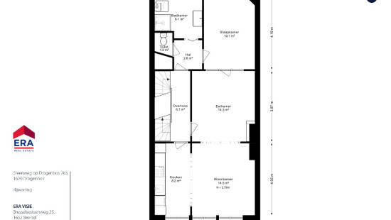
Slaapkamer
Slaapkamer
Slaapkamer
Living
Inkomhal
Douchekamer
Toilet
Keuken
Keuken
Living
Douchekamer
Toilet
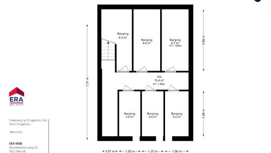
Berging
Toilet
Berging
Douchekamer
Keuken
Living
Kelder
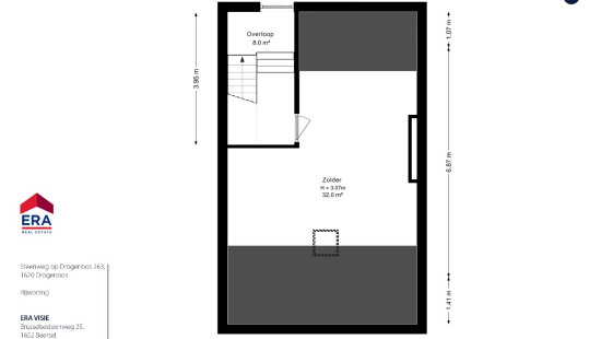
Zolder
Terras
Tuin
Technische en juridische informatie
Algemeen
Beschermd erfgoed
Nee
Opgenomen in een inventaris van onroerend erfgoed
Nee
Energie en elektriciteit
Elektrische keuring
Keuringsverslag - Niet conform
Nutsvoorzieningen
Gas
Elektriciteit
Stadswater
Internet
EPC-certificaat
Ja
Energielabel
F
Certificaatnummer
20241130-0003463861-RES-1
Berekend specifiek energieverbruik
518
Planningsinformatie
Stedenbouwkundige vergunning
Vergunning uitgereikt
Stedenbouwkundige verplichting
Nee
In inventaris van de niet uitgebate bedrijfsruimten
Nee
Voorwerp van rooiplan
Nee
Herstelmaatregel
Geen rechterlijke herstelmaatregel of bestuurlijke maatregel opgelegd
Verkavelingsvergunning uitgereikt
Nee
Voorkoopsrecht ruimtelijke ordening
Ja
Stedelijke bestemming
Woongebied
Overstromingsgebied
Onroerend goed, niet gelegen in een overstromingsgebied
P(erceel) score
klasse A
G(ebouw) score
klasse A
Renovatieverplichting
Van toepassing/Applicable
In watergevoelig gebied
Niet van toepassing/Non-applicable
Sluiten
