
Licht appartement met 2 slpks, parkeerplaatsen en privétu
Verkocht




+12 foto's weergeven












Appartement
Gesloten
2 slaapkamer(s)
1 badkamer(s)
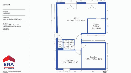
100 m² woonoppervlakte
100 m² grondoppervlakte
C
Pandcode: 1413979
Beschrijving van het pand
Specificaties
Kenmerken
Algemeen
Woonoppervlakte
100.00m²
Grondoppervlakte
100.00m²
Type oppervlakte
Bruto
Omgeving
Omgeving school
Nabij openbaar vervoer
Nabij treinstation
Vrij zicht
Invalswegen
Nabij ziekenhuis
Kadastraal inkomen
€815,00
Verwarming
Type
Centrale verwarming
Radiator
Radiatoren
Verwarmingsketel
Verwarmingsmateriaal
Stookolie
Diversen
Schrijnwerk
Hout
Dubbele beglazing
Isolatie
Detailinfo op aanvraag
Warm water
Niet bepaald
Gebouw
Bouwjaar
1994
Verdieping
2
Aantal verdiepingen
2
Allerlei
Parlofoon
Lift aanwezig
Nee
Details
Living
Keuken
Badkamer
Slaapkamer
Slaapkamer
Toilet
Technische en juridische informatie
Algemeen
Beschermd erfgoed
Nee
Opgenomen in een inventaris van onroerend erfgoed
Nee
Energie en elektriciteit
Elektrische keuring
Keuringsverslag - Niet conform
Nutsvoorzieningen
Elektriciteit
Kabeldistributie
Stadswater
Telefoon
Elektriciteit Nachttarief
Energielabel
C
E-peil
C
Certificaatnummer
20251013019162
Berekend specifiek energieverbruik
100
CO2-uitstoot
44.00
Berekend totaal energieverbruik
17807
Planningsinformatie
Stedenbouwkundige vergunning
Vergunning uitgereikt
Stedenbouwkundige verplichting
Ja
In inventaris van de niet uitgebate bedrijfsruimten
Nee
Voorwerp van rooiplan
Nee
Herstelmaatregel
Geen rechterlijke herstelmaatregel of bestuurlijke maatregel opgelegd
Verkavelingsvergunning uitgereikt
Nee
Voorkoopsrecht ruimtelijke ordening
Nee
Renovatieverplichting
Niet van toepassing/Non-applicable
In watergevoelig gebied
Niet van toepassing/Non-applicable
Sluiten
