
Tombez sous le charme de cette maison pleine de caractère !
€ 160 000




Afficher +9 photo(s)









Maison
3F
2 chambre(s)
1 salle(s) de bain(s)
147 m² de surface habitable
1 m² de surface de terrain
D
Code du bien : 1417735
Description du bien
Spécifications
Caractéristiques
Général
Surface habitable
147.00m²
Superficie du terrain
1.00m²
Type de superficie
Brut
Environnement
Centre
Centre d'habitation
Environnement verdoyant
Rural
A proximité d'écoles
A proximité des transports en commun
Vue dégagée
Routes d'acces
Revenu cadastral net
€294,00
Chauffage
Type
Chauffage individuel
Radiateurs
Poêle à pellet
Combustible chauffage
Pellets
Divers
Menuiserie
PVC
Bois
Double vitrage
Isolation
Détails sur demande
Eau chaude
Boiler électrique
Bâtiment
Année de construction
avant 1850
Nombre d'étages
1
Ascenseur disponible
Non
Détails
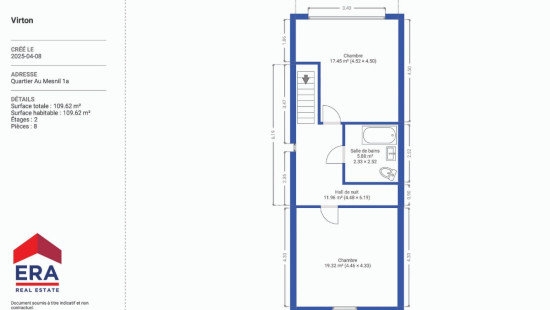
Chambre à coucher
Chambre à coucher
Living
Cuisine
Salle à manger
Salle de bains
Hall de nuit
Informations techniques et mentions légales
Général
Patrimoine classé
Non
Repris dans l’inventaire du patrimoine
Non
Énergie et électricité
Inspection électrique
Attestation électrique - Conforme
Raccordements
Electricité
Raccordements aux égouts
Télédistribution
Eau de ville
Téléphone
Électricité avec tarif de nuit
Électricité individuelle
Internet
Certificat PEB
Oui
Classe énergétique
D
Niveau E
D
Numéro de certificat
20250408011010
Consommation spécifique d'énergie calculée
284
Emission de CO2
9.00
Consommation totale d'énergie calculée
41769
Information urbanistique
Permis d'urbanisme
Bien construit avant 1962
obligation d'urbanisme
Oui
Dans l'inventaire des locaux inexploités
Non
Objet du plan de alignement
Non
mesure de récupération
Geen rechterlijke herstelmaatregel of bestuurlijke maatregel opgelegd
Autorisation de lotissement
Non
Droit de préemption
Non
Destination urbaine
La zone d'habitat à caractère rural
Obligation de rénovation
Niet van toepassing/Non-applicable
En zone sensible à l'eau
Niet van toepassing/Non-applicable
Fermer
