Nieuwbouwwoning te koop in Roosdaal!

€ 610 000

Spécifications

Caractéristiques

Général

Surface habitable
163.57m²
Superficie du terrain
430.00m²
Surface à bâtir
105.00m²
Surface bâtie
122.50m²
Largeur du terrain
10.00m
Type de superficie
Brut
Environnement
Périphérie
Résidentiel
A proximité des transports en commun
Revenu cadastral net
€4,00

Chauffage

Type
Chauffage central
Radiateurs
Chauffage par le sol
Combustible chauffage
Pompe à chaleur (air)

Divers

Menuiserie
PVC
Vitrage super-isolant à haut rendement
Isolation
Détails sur demande
Eau chaude
Pompe à chaleur

Bâtiment

Année de construction
2025
Divers
Méthode de construction : Maçonnerie traditionnelle
Ascenseur disponible
Non

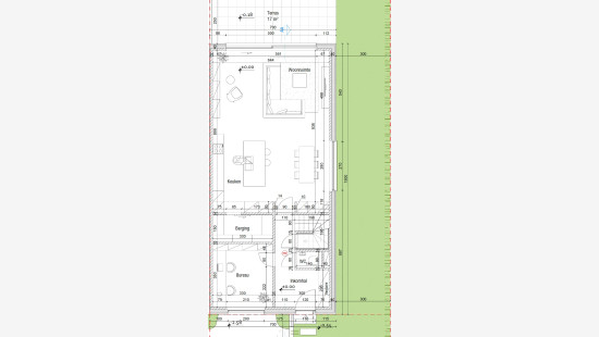
Hall d'entrée

Surface calculée
9 m²

Bureau

Surface calculée
12 m²

Débarras

Surface calculée
5 m²

Toilette

Surface calculée
1 m²

Cuisine

Surface calculée
16 m²

Terrasse

Surface calculée
18 m²

Salle de bains

Surface calculée
6 m²

Salle de douche

Surface calculée
5 m²

Chambre à coucher

Surface calculée
10 m²
1 chambre(s) possible(s)

Chambre à coucher

Surface calculée
12 m²
1 chambre(s) possible(s)

Chambre à coucher

Surface calculée
20 m²
1 chambre(s) possible(s)

Grenier

Surface calculée
58 m²

Garage

Surface calculée
46 m²

Cave

Surface calculée
26 m²

Débarras

Surface calculée
26 m²

Général

Patrimoine classé
Non
Repris dans l’inventaire du patrimoine
Non

Énergie et électricité

Raccordements
Electricité
Citerne nappe phréatique
Raccordements aux égouts
Eau : à raccorder
Classe énergétique
A
PEB
23097-G-OMV_2023094627
Consommation spécifique d'énergie calculée
29

Information urbanistique

Permis d'urbanisme
Permis accordé
obligation d'urbanisme
Oui
Dans l'inventaire des locaux inexploités
Non
Objet du plan de alignement
Non
mesure de récupération
Aucune mesure judiciaire ou administrative imposée
Autorisation de lotissement
Non
Droit de préemption
Non
Destination urbaine
Zone d'habitation
Zone inondable
Bien immobilier situé en zone non inondable
Score P(arcel)
klasse A
Score G (bâtiment)
klasse A
Obligation de rénovation
Niet van toepassing/Non-applicable
En zone sensible à l'eau
Niet van toepassing/Non-applicable
Danny De Cooman
Ninoofsesteenweg 215 A, 1750 Roosdaal