
Maison
3F
1 chambre(s)
1 salle(s) de bain(s)
75 m² de surface habitable
120 m² de surface de terrain
F
Code du bien : 1432912
Description du bien
Spécifications
Caractéristiques
Général
Surface habitable
75.00m²
Superficie du terrain
120.00m²
Type de superficie
Net
Environnement
A proximité d'écoles
Garantie Confort ERA
Basic
Chauffage
Type
Chauffage individuel
Radiateurs
Poêle à pellet
Combustible chauffage
Pellets
Divers
Menuiserie
Double vitrage
Isolation
Isolation de toit
Eau chaude
Boiler électrique
Bâtiment
Ascenseur disponible
Non
Détails
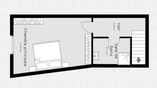
Chambre à coucher
Salle de bains
Hall de nuit
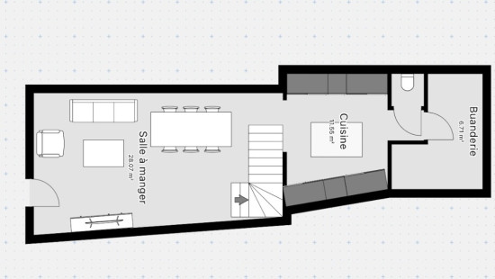
Buanderie
Cuisine
Living
Informations techniques et mentions légales
Général
Patrimoine classé
Non
Repris dans l’inventaire du patrimoine
Non
Énergie et électricité
Raccordements
Electricité
Eau de ville
Téléphone
Internet
Certificat PEB
Oui
Classe énergétique
F
Niveau E
F
Numéro de certificat
20251014035034
Consommation spécifique d'énergie calculée
489
Emission de CO2
8.00
Consommation totale d'énergie calculée
51660
Information urbanistique
Permis d'urbanisme
Permis accordé
obligation d'urbanisme
Non
Dans l'inventaire des locaux inexploités
Non
Objet du plan de alignement
Non
Autorisation de lotissement
Non
Droit de préemption
Non
Zone inondable
Bien immobilier situé en zone non inondable
Obligation de rénovation
Niet van toepassing/Non-applicable
En zone sensible à l'eau
Niet van toepassing/Non-applicable


Fermer
















