
Bâtiment de rapport
4F
8 chambre(s)
3 salle(s) de bain(s)
223 m² de surface habitable
267 m² de surface de terrain
D
Code du bien : 1457690
Description du bien
Spécifications
Caractéristiques
Général
Surface habitable
223.42m²
Superficie du terrain
267.00m²
Largeur du terrain
17.00m
Type de superficie
Brut
Orientation terrain
Est
Façade orientation
Sud
Environnement
A proximité d'écoles
A proximité des transports en commun
A proximité de gare ferroviaire
Revenu cadastral net
€917,00
Chauffage
Type
Chauffage central
Radiateurs
Chaudière
Combustible chauffage
Mazout
Divers
Menuiserie
PVC
Double vitrage
Isolation
Toit
Eau chaude
Boiler sur chauffage central
Bâtiment
Année de construction
1955
Ascenseur disponible
Non
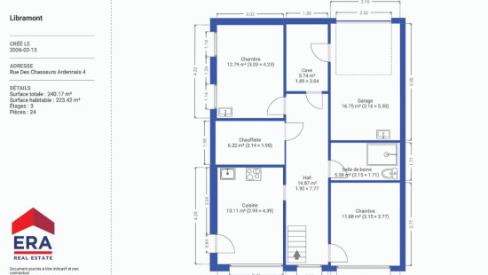
Détails
Chambre à coucher
Cave
Garage
Chaufferie
Cuisine
Hall
Chambre à coucher
Salle de bains
Chambre à coucher
Cuisine
Chambre à coucher
Hall d'entrée
Chambre à coucher
Salle de bains
Chambre à coucher
Chambre à coucher
Bureau
Chambre à coucher
Salle de bains
Hall
Cuisine
Bureau
Jardin
Informations techniques et mentions légales
Général
Patrimoine classé
Non
Repris dans l’inventaire du patrimoine
Non
Énergie et électricité
Inspection électrique
Attestation électrique - Conforme
Raccordements
Electricité
Raccordements aux égouts
Eau de ville
Certificat PEB
Oui
Classe énergétique
D
Niveau E
D
Numéro de certificat
20160612014657
Consommation spécifique d'énergie calculée
321
Emission de CO2
80.00
Consommation totale d'énergie calculée
98481
Information urbanistique
Permis d'urbanisme
Bien construit avant 1962
obligation d'urbanisme
Oui
Dans l'inventaire des locaux inexploités
Non
Objet du plan de alignement
Non
mesure de récupération
Aucune mesure judiciaire ou administrative imposée
Autorisation de lotissement
Non
Droit de préemption
Non
Zone inondable
Bien immobilier situé en zone non inondable
Obligation de rénovation
Niet van toepassing/Non-applicable
En zone sensible à l'eau
Niet van toepassing/Non-applicable
Fermer





















