Ancienne ferme rénovée avec terrain et dépendances

€ 235 000

Description du bien

ERA B-LUX vous présente cette ancienne ferme rénovée, située dans le charmant et paisible village de Martilly, en pleine nature.
La maison propose 3 chambres et un excellent confort avec électricité conforme, PEB C, 2 pompes à chaleur, nouvelle chaudière mazout et 26 panneaux photovoltaïques.
Implantée sur un terrain de 3.218 m² exposé plein sud, la propriété comprend également une place à bâtir, offrant un beau potentiel d’évolution.
Les dépendances, avec un garage de 84 m² et une grange de 169 m², permettent de nombreux projets (stockage, activité indépendante…). Possibilité de créer un logement supplémentaire sous réserve de permis.
Un bien rare alliant charme, espace et potentiel dans un cadre naturel recherché.
Contactez ERA B-LUX au +32 61 21 07 50 pour plus d’informations.

Spécifications

Caractéristiques

Général

Surface habitable
183.00m²
Superficie du terrain
3218.00m²
Type de superficie
Brut
Environnement
Zone touristique
Rural
Revenu cadastral net
€361,00

Chauffage

Type
Chauffage central
Radiateurs
Radiateurs
Chaudière
Combustible chauffage
Panneaux solaires
Mazout
Pompe à chaleur (air)

Divers

Menuiserie
Double vitrage
Isolation
Détails sur demande
Eau chaude
Boiler électrique

Bâtiment

Année de construction
avant 1850
Ascenseur disponible
Non

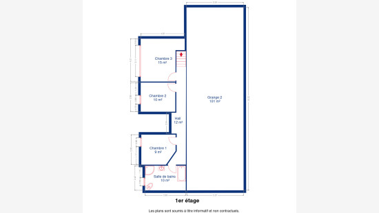
Chambre à coucher

Surface calculée
9 m²
1 chambre(s) possible(s)

Chambre à coucher

Surface calculée
10 m²
1 chambre(s) possible(s)

Chambre à coucher

Surface calculée
15 m²
1 chambre(s) possible(s)

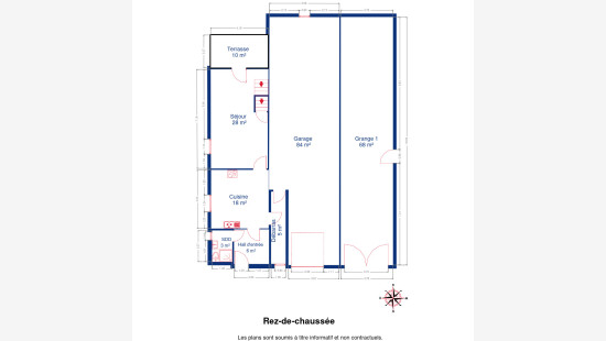
Garage

Surface calculée
84 m²

Grange

Surface calculée
68 m²

Terrasse

Surface calculée
10 m²

Living

Surface calculée
28 m²

Cuisine

Surface calculée
18 m²

Salle de douche

Surface calculée
3 m²

Hall d'entrée

Surface calculée
6 m²

Débarras

Surface calculée
5 m²

Grange

Surface calculée
100 m²

Hall de nuit

Surface calculée
12 m²

Salle de bains

Surface calculée
10 m²

Jardin

Surface calculée
3218 m²

Général

Patrimoine classé
Non
Repris dans l’inventaire du patrimoine
Non

Énergie et électricité

Inspection électrique
Attestation électrique - Conforme
Raccordements
Raccordements aux égouts
Panneaux photovoltaiques
Eau de ville
Électricité avec tarif de nuit
Certificat PEB
Oui
Classe énergétique
C
PEB
C
Niveau E
C
Numéro de certificat
20250617003464
Consommation spécifique d'énergie calculée
250
Emission de CO2
63.00
Consommation totale d'énergie calculée
45798

Information urbanistique

Permis d'urbanisme
Permis non accordé
obligation d'urbanisme
Oui
Dans l'inventaire des locaux inexploités
Non
Objet du plan de alignement
Non
Autorisation de lotissement
Non
Droit de préemption
Non
Obligation de rénovation
Niet van toepassing/Non-applicable
En zone sensible à l'eau
Niet van toepassing/Non-applicable
Quentin Fourny
Rue Paul Mernier 16 , 6887 Herbeumont