
Maison de caractère 5ch avec jardin - Arlon
€ 640 000
Lancer la vidéo




Afficher +20 photo(s)




















Maison
4F
5 chambre(s)
1 salle(s) de bain(s)
299 m² de surface habitable
1,683 m² de surface de terrain
C
Code du bien : 1478900
Description du bien
Spécifications
Caractéristiques
Général
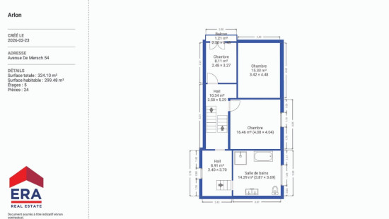
Surface habitable
299.48m²
Superficie du terrain
1683.00m²
Largeur du terrain
12.00m
Type de superficie
Brut
Orientation terrain
Sud
Façade orientation
Nord
Environnement
A proximité d'écoles
A proximité des transports en commun
A proximité de gare ferroviaire
Revenu cadastral net
€468,00
Chauffage
Type
Chauffage central
Radiateurs
Chaudière
Combustible chauffage
Gaz
Divers
Menuiserie
PVC
Double vitrage
Isolation
Châssis
Mur
Eau chaude
Boiler sur chauffage central
Bâtiment
Année de construction
de 1850 à 1874
Divers
Stores
Ascenseur disponible
Non
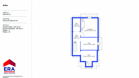
Détails
Chaufferie
Cave
Cave
Cave
Hall
Living
Living
Buanderie
Hall d'entrée
Toilette
Garage
Cuisine
Grenier
Chambre à coucher
Chambre à coucher
Hall
Grenier
Chambre à coucher
Chambre à coucher
Hall
Chambre à coucher
Salle de bains
Hall
Jardin
Informations techniques et mentions légales
Général
Patrimoine classé
Non
Repris dans l’inventaire du patrimoine
Non
Énergie et électricité
Inspection électrique
Attestation électrique - Conforme
Raccordements
Electricité
Raccordements aux égouts
Eau de ville
Certificat PEB
Oui
Classe énergétique
C
Niveau E
C
Numéro de certificat
20250528010135
Consommation spécifique d'énergie calculée
229
Emission de CO2
42.00
Consommation totale d'énergie calculée
71927
Information urbanistique
Permis d'urbanisme
Bien construit avant 1962
obligation d'urbanisme
Oui
Dans l'inventaire des locaux inexploités
Non
Objet du plan de alignement
Non
mesure de récupération
Aucune mesure judiciaire ou administrative imposée
Autorisation de lotissement
Non
Droit de préemption
Non
Destination urbaine
La zone d'habitat
Zone inondable
Bien immobilier situé en zone non inondable
Obligation de rénovation
Niet van toepassing/Non-applicable
En zone sensible à l'eau
Niet van toepassing/Non-applicable
Fermer
