
Immeuble de rapport avec excellent rendement à centre Alost
€ 445 000
Lancer la vidéo




Afficher +27 photo(s)



























Bâtiment de rapport
2F
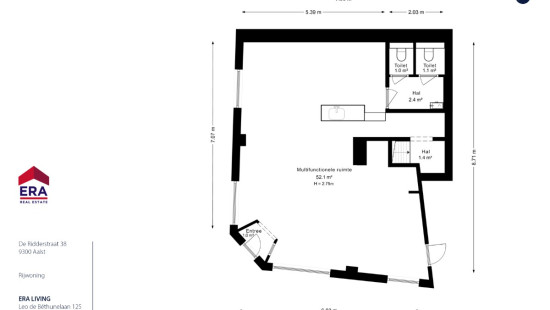
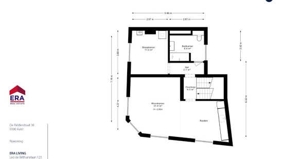
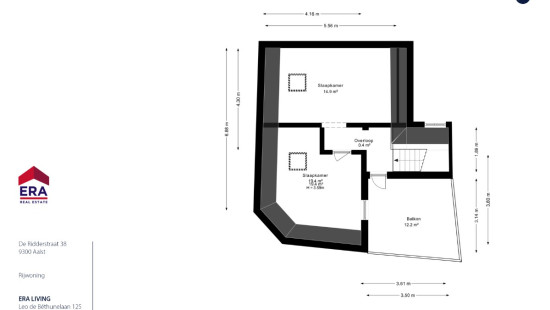
3 chambres (4 possible)
1 salle(s) de bain(s)
234 m² de surface habitable
90 m² de surface de terrain
C
Code du bien : 1459902
Description du bien
Spécifications
Caractéristiques
Général
Surface habitable
234.00m²
Superficie du terrain
90.00m²
Type de superficie
Brut
Revenu cadastral net
€850,00
Chauffage
Type
Chauffage central
Radiateurs
Radiateurs avec vannes thermostatiques
Combustible chauffage
Gaz
Divers
Menuiserie
Vitrage super-isolant à haut rendement
Isolation
Détails sur demande
Eau chaude
Boiler électrique (nuit)
Bâtiment
Année de construction
1934
Divers
Méthode de construction : Maçonnerie traditionnelle
Ascenseur disponible
Non
Détails
Chambre à coucher
Salle de bains
Chambre à coucher
Chambre à coucher
Terrasse
Espace commercial
Informations techniques et mentions légales
Général
Patrimoine classé
Non
Repris dans l’inventaire du patrimoine
Non
Énergie et électricité
Inspection électrique
Attestation électrique demandée
Raccordements
Gaz
Electricité
Raccordements aux égouts
Téléphone
Internet
Certificat PEB
Oui
Classe énergétique
C
Numéro de certificat
20211209-0002504333-RES-1
Consommation spécifique d'énergie calculée
251
Information urbanistique
Permis d'urbanisme
Permis accordé
obligation d'urbanisme
Oui
Dans l'inventaire des locaux inexploités
Non
Objet du plan de alignement
Non
mesure de récupération
Aucune mesure judiciaire ou administrative imposée
Autorisation de lotissement
Non
Droit de préemption
Non
Destination urbaine
Zone d'habitation
Zone inondable
Bien immobilier situé en zone non inondable
Score P(arcel)
klasse B
Score G (bâtiment)
klasse B
Obligation de rénovation
Niet van toepassing/Non-applicable
En zone sensible à l'eau
Niet van toepassing/Non-applicable
Fermer
