
House
Semi-detached
3 bedrooms
1 bathroom(s)
353 m² habitable sp.
1,961 m² ground sp.
E
Property code: 1432354
Description of the property
Specifications
Characteristics
General
Habitable area (m²)
353.00m²
Soil area (m²)
1961.00m²
Surface type
Brut
Surroundings
Near school
Close to public transport
Near railway station
Taxable income
€1341,00
Heating
Heating type
Central heating
Heating elements
Radiators
Central heating boiler, furnace
Heating material
Fuel oil
Pellets
Miscellaneous
Joinery
PVC
Double glazing
Isolation
Detailed information on request
Warm water
Electric boiler
Boiler on central heating
Building
Year built
1949
Lift present
No
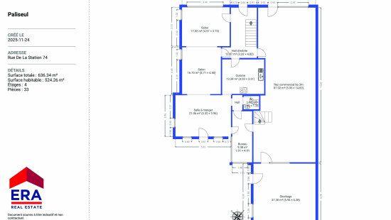
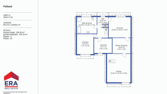
Details
Bedroom
Bedroom
Bedroom
Boiler room
Garage
Garage
Garage
Laundry area
Atelier
Basement
Garage
Garage
Garage
Living room, lounge
Living room, lounge
Dining room
Entrance hall
Kitchen
Office
Commercial premises
Multi-purpose room
Bathroom
Hall
Office
Attic
Attic
Attic
Garden
Technical and legal info
General
Protected heritage
No
Recorded inventory of immovable heritage
No
Energy & electricity
Utilities
Electricity
Septic tank
Sewer system connection
City water
Energy performance certificate
Yes
Energy label
E
EPB
E
E-level
E
Certificate number
20251110005175
Calculated specific energy consumption
360
CO2 emission
89.00
Calculated total energy consumption
127188
Planning information
Urban Planning Permit
Property built before 1962
Urban Planning Obligation
Yes
In Inventory of Unexploited Business Premises
No
Subject of a Redesignation Plan
No
Summons
Geen rechterlijke herstelmaatregel of bestuurlijke maatregel opgelegd
Subdivision Permit Issued
No
Pre-emptive Right to Spatial Planning
No
Flood Area
Not applicable
Renovation Obligation
Niet van toepassing/Non-applicable
In water sensetive area
Niet van toepassing/Non-applicable
Close



















