
Commerce avec logement à vendre dans le centre de Vilvorde
Vendu




Afficher +26 photo(s)


























Bâtiment de rapport
2F
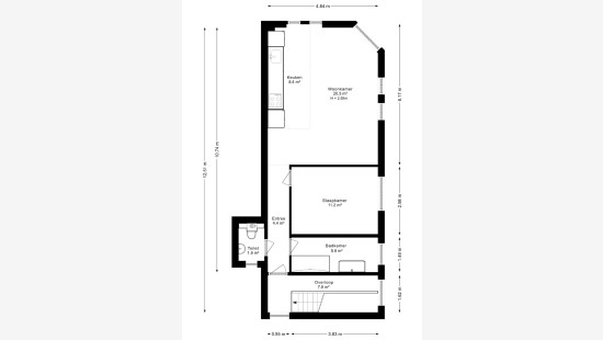
2 chambre(s)
2 salle(s) de bain(s)
185 m² de surface habitable
135 m² de surface de terrain
C
Code du bien : 1391051
Description du bien
Spécifications
Caractéristiques
Général
Surface habitable
185.00m²
Superficie du terrain
135.00m²
Type de superficie
Brut
Environnement
Centre
A proximité d'écoles
A proximité des transports en commun
A proximité de parc
A proximité de gare ferroviaire
Routes d'acces
Hôpital à proximité
Revenu cadastral net
€1389,00
Chauffage
Type
Chauffage central
Chauffage individuel
Radiateurs
Radiateurs
Chaudière à condensation
Combustible chauffage
Gaz
Divers
Menuiserie
PVC
Double vitrage
Vitrage super-isolant à haut rendement
Isolation
Plancher
Vitrage
Eau chaude
Serpentin de chauffe
Bâtiment
Année de construction
1936
Ascenseur disponible
Non
Détails
Espace commercial
Cuisine
Débarras
Toilette
Terrasse
Hall
Toilette
Salle de bains
Chambre à coucher
Living
Cuisine
Hall
Toilette
Salle de bains
Chambre à coucher
Living
Cuisine
Informations techniques et mentions légales
Général
Patrimoine classé
Non
Repris dans l’inventaire du patrimoine
Non
Énergie et électricité
Inspection électrique
Attestation électrique - Conforme
Raccordements
Gaz
Electricité
Raccordements aux égouts
Eau de ville
Classe énergétique
C
Numéro de certificat
20250819-0003666978-RES-1
Consommation spécifique d'énergie calculée
294
Information urbanistique
Permis d'urbanisme
Bien construit avant 1962
obligation d'urbanisme
Non
Dans l'inventaire des locaux inexploités
Non
Objet du plan de alignement
Non
mesure de récupération
Geen rechterlijke herstelmaatregel of bestuurlijke maatregel opgelegd
Autorisation de lotissement
Non
Droit de préemption
Non
Destination urbaine
Zone d'habitation
Zone inondable
Bien immobilier situé en zone non inondable
Score P(arcel)
klasse A
Score G (bâtiment)
klasse A
Obligation de rénovation
Niet van toepassing/Non-applicable
En zone sensible à l'eau
Niet van toepassing/Non-applicable
Fermer
