
Maison 4 façades avec 3 chambres et jardin à Vielsalm
En option - prix sur demande




Afficher +17 photo(s)

















Maison
4F
2 chambre(s)
1 salle(s) de bain(s)
173 m² de surface habitable
691 m² de surface de terrain
Code du bien : 1463120
Description du bien
Spécifications
Caractéristiques
Général
Surface habitable
173.00m²
Superficie du terrain
691.00m²
Type de superficie
Brut
Environnement
A proximité d'écoles
A proximité des transports en commun
A proximité de gare ferroviaire
Revenu cadastral net
€528,00
Chauffage
Type
Chauffage central
Radiateurs
Radiateurs
Chaudière
Combustible chauffage
Mazout
Divers
Menuiserie
Bois
Double vitrage
Isolation
Détails sur demande
Eau chaude
Boiler sur chauffage central
Bâtiment
Année de construction
1948
Ascenseur disponible
Non
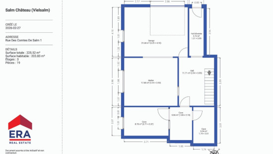
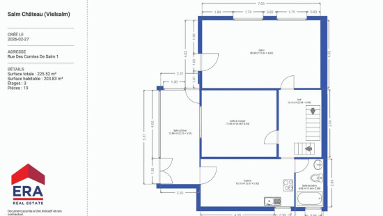
Détails
Garage
Atelier
Cave
Hall d'entrée
Hall
Cave
Cave
Living
Living
Salle à manger
Hall
Salle de bains
Chambre à coucher
Grenier
Chambre à coucher
Grenier
Hall
Jardin
Informations techniques et mentions légales
Général
Patrimoine classé
Non
Repris dans l’inventaire du patrimoine
Non
Énergie et électricité
Inspection électrique
Attestation électrique - Non-Conforme
Raccordements
Electricité
Raccordements aux égouts
Eau de ville
Électricité avec tarif de nuit
Certificat PEB
Oui
Classe énergétique
E
PEB
E
Numéro de certificat
20250725003178
Consommation spécifique d'énergie calculée
399
Emission de CO2
99.00
Consommation totale d'énergie calculée
69097
Information urbanistique
Permis d'urbanisme
Bien construit avant 1962
obligation d'urbanisme
Oui
Dans l'inventaire des locaux inexploités
Non
Objet du plan de alignement
Non
mesure de récupération
Aucune mesure judiciaire ou administrative imposée
Autorisation de lotissement
Non
Droit de préemption
Non
Obligation de rénovation
Niet van toepassing/Non-applicable
En zone sensible à l'eau
Niet van toepassing/Non-applicable
Fermer