
198 m² de charme pour écrire votre nouvelle histoire
€ 279 000
Lancer la vidéo
Journée Maisons Ouvertes le 14/03 de 14:30 à 15:30




Afficher +23 photo(s)























Maison
2F
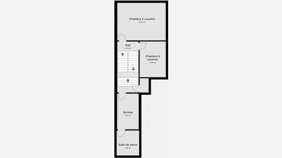
3 chambre(s)
167 m² de surface habitable
360 m² de surface de terrain
D
Code du bien : 1471573
Description du bien
Spécifications
Caractéristiques
Général
Surface habitable
167.00m²
Superficie du terrain
360.00m²
Type de superficie
Brut
Environnement
Quartier commerçant
A proximité d'écoles
A proximité des transports en commun
A proximité de parc
A proximité de gare ferroviaire
Garantie Confort ERA
Basic
Chauffage
Type
Chauffage central
Radiateurs
Radiateurs
Combustible chauffage
Gaz
Divers
Menuiserie
PVC
Double vitrage
Isolation
Détails sur demande
Eau chaude
Boiler électrique
Boiler Gaz
Bâtiment
Ascenseur disponible
Non
Détails
Chambre à coucher
Chambre à coucher
Chambre à coucher
Informations techniques et mentions légales
Général
Patrimoine classé
Non
Repris dans l’inventaire du patrimoine
Non
Énergie et électricité
Raccordements
Gaz
Electricité
Gaz disponible dans la rue
Télédistribution
Eau de ville
Téléphone
Internet
Certificat PEB
Oui
Classe énergétique
D
Niveau E
D
Numéro de certificat
20260202030960
Consommation spécifique d'énergie calculée
303
Emission de CO2
55.00
Consommation totale d'énergie calculée
60147
Information urbanistique
Permis d'urbanisme
Bien construit avant 1962
obligation d'urbanisme
Non
Dans l'inventaire des locaux inexploités
Non
Objet du plan de alignement
Non
mesure de récupération
Aucune mesure judiciaire ou administrative imposée
Autorisation de lotissement
Non
Droit de préemption
Non
Obligation de rénovation
Niet van toepassing/Non-applicable
En zone sensible à l'eau
Niet van toepassing/Non-applicable

Planifiez votre visite lors Journée Maisons Ouvertes
Visitez la JOURNÉE MAISONS OUVERTES ERA et profitez de notre ‘fast lane expérience’ ! L’inscription n’est pas obligatoire, mais elle nous permet de mieux vous informer avant et pendant votre visite.
Fermer
