
Appartement rénové au centre de Turnhout
Vendu




Afficher +6 photo(s)






Appartement
2F
1 chambre(s)
1 salle(s) de bain(s)
65 m² de surface habitable
185 m² de surface de terrain
B
Code du bien : 1451190
Description du bien
Spécifications
Caractéristiques
Général
Surface habitable
65.00m²
Superficie du terrain
185.00m²
Type de superficie
Brut
Environnement
Centre
Centre d'habitation
A proximité des transports en commun
Routes d'acces
Hôpital à proximité
Chauffage
Type
Chauffage central
Radiateurs
Radiateurs
Chaudière à condensation
Combustible chauffage
Gaz
Divers
Menuiserie
PVC
Double vitrage
Isolation
Vitrage
Mur
Eau chaude
Serpentin de chauffe
Bâtiment
Année de construction
1950
Etage
0
Divers
Vidéophone
Ascenseur disponible
Non
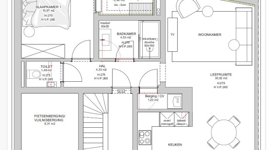
Détails
Hall d'entrée
Living
Cuisine
Débarras
Salle de bains
Toilette
Chambre à coucher
Cour
Débarras
Informations techniques et mentions légales
Général
Patrimoine classé
Non
Repris dans l’inventaire du patrimoine
Non
Énergie et électricité
Inspection électrique
Attestation électrique - Conforme
Raccordements
Gaz
Electricité
Raccordements aux égouts
Eau de ville
Certificat PEB
Oui
Classe énergétique
B
Consommation spécifique d'énergie calculée
181
Information urbanistique
Permis d'urbanisme
Permis non accordé
obligation d'urbanisme
Oui
Dans l'inventaire des locaux inexploités
Non
Objet du plan de alignement
Non
mesure de récupération
Geen rechterlijke herstelmaatregel of bestuurlijke maatregel opgelegd
Autorisation de lotissement
Non
Droit de préemption
Non
Destination urbaine
Zone d'habitation
Zone inondable
Bien immobilier situé en zone non inondable
Score P(arcel)
klasse B
Score G (bâtiment)
klasse B
Obligation de rénovation
Niet van toepassing/Non-applicable
En zone sensible à l'eau
Niet van toepassing/Non-applicable
Fermer
