
Appartement neuf avec jardin à Strombeek-Bever
€ 399 000
Lancer la vidéo
Journée Maisons Ouvertes le 06/12 de 14:30 à 15:30




Afficher +9 photo(s)









Appartement
2F
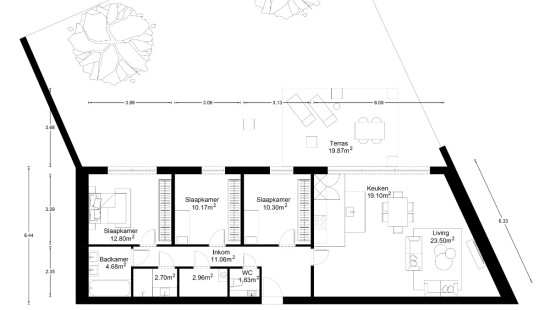
3 chambre(s)
1 salle(s) de bain(s)
118 m² de surface habitable
Code du bien : 1415044
Description du bien
Spécifications
Caractéristiques
Général
Surface habitable
118.00m²
Type de superficie
Brut
Environnement
Centre
Résidentiel
A proximité d'écoles
A proximité des transports en commun
Routes d'acces
Chauffage
Type
Chauffage individuel
Radiateurs
Chauffage par le sol
Combustible chauffage
Pompe à chaleur (air)
Divers
Menuiserie
Double vitrage
Isolation
Vitrage
Mur
Isolation de toit
Plancher accoustique
Eau chaude
Pompe à chaleur
Bâtiment
Année de construction
2025
Etage
0
Divers
Vidéophone
Ascenseur disponible
Oui
Détails
Hall d'entrée
Cave
Emplacement de garage
Living
Cuisine
Chambre à coucher
Chambre à coucher
Chambre à coucher
Salle de bains
Débarras
Toilette
Terrasse
Jardin
Informations techniques et mentions légales
Général
Patrimoine classé
Non
Repris dans l’inventaire du patrimoine
Non
Énergie et électricité
Inspection électrique
Attestation électrique - Conforme
Raccordements
Electricité
Télédistribution
Eau de ville
Internet
Certificat PEB
Oui
Classe énergétique
-
Niveau E
A
Consommation totale d'énergie calculée
24
Information urbanistique
Permis d'urbanisme
Permis non accordé
obligation d'urbanisme
Non
Dans l'inventaire des locaux inexploités
Non
Objet du plan de alignement
Non
Autorisation de lotissement
Non
Droit de préemption
Non
Zone inondable
Bien immobilier situé en zone non inondable
Obligation de rénovation
Niet van toepassing/Non-applicable
En zone sensible à l'eau
Niet van toepassing/Non-applicable

Planifiez votre visite lors Journée Maisons Ouvertes
Visitez la JOURNÉE MAISONS OUVERTES ERA et profitez de notre ‘fast lane expérience’ ! L’inscription n’est pas obligatoire, mais elle nous permet de mieux vous informer avant et pendant votre visite.
Fermer