
4 façades avec garage et entrepôt !
À partir de € 230 000
Lancer la vidéo




Afficher +19 photo(s)



















Maison
4F
1 chambre(s)
1 salle(s) de bain(s)
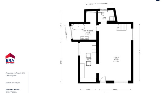
134 m² de surface habitable
815 m² de surface de terrain
Code du bien : 1459071
Description du bien
Spécifications
Caractéristiques
Général
Surface habitable
134.00m²
Superficie du terrain
815.00m²
Type de superficie
Brut
Environnement
Routes d'acces
Revenu cadastral net
€406,00
Chauffage
Type
Chauffage individuel
Radiateurs
Air pulsé
Poêle à pellet
Combustible chauffage
Pellets
Pompe à chaleur (air)
Divers
Menuiserie
PVC
Isolation
Isolation dans murs creux
Châssis
Eau chaude
Boiler électrique
Bâtiment
Année de construction
1960
Nombre d'étages
2
Divers
Air Conditionné
Ascenseur disponible
Non
Détails
Chambre à coucher
Cuisine
Buanderie
Cave
Garage
Grenier
Living
Bureau
Salle de bains
Informations techniques et mentions légales
Général
Patrimoine classé
Non
Repris dans l’inventaire du patrimoine
Non
Énergie et électricité
Inspection électrique
Attestation électrique demandée
Raccordements
Électricité individuelle
Certificat PEB
Oui
Classe énergétique
C
Numéro de certificat
20260203001739
Consommation spécifique d'énergie calculée
230
Emission de CO2
59.00
Consommation totale d'énergie calculée
30838
Information urbanistique
Permis d'urbanisme
Permis accordé
obligation d'urbanisme
Non
Dans l'inventaire des locaux inexploités
Non
Objet du plan de alignement
Non
mesure de récupération
Aucune mesure judiciaire ou administrative imposée
Autorisation de lotissement
Non
Droit de préemption
Non
Obligation de rénovation
Niet van toepassing/Non-applicable
En zone sensible à l'eau
Niet van toepassing/Non-applicable
Fermer
