Description du bien

✨ Envie de vivre dans le village le plus prisé de Silly ?
🏡 ERA WELCHOME l’a trouvée pour vous !
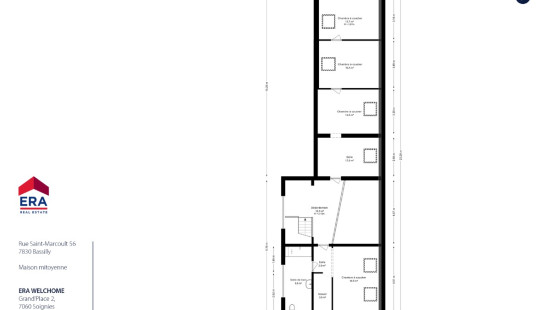
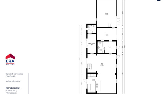
Cette magnifique maison vous accueille avec un hall d’entrée desservant un bureau, un WC séparé ainsi qu’un spacieux salon – salle à manger avec cuisine ouverte, idéal pour partager de beaux moments en famille.
Au rez-de-chaussée, vous profiterez également d’une chambre avec sa salle de douche privative… Un vrai atout pour anticiper l’avenir ou accueillir vos proches en toute autonomie.
À l’étage, le hall de nuit mène à une superbe suite parentale avec dressing et salle de douche, ainsi qu’à trois chambres en enfilade — parfait pour une grande famille ou pour aménager un espace loisirs / bureau selon vos besoins.
🐎 Et ce n’est pas tout !
À l’extérieur, vous découvrirez deux boxes ainsi qu’une piste pour chevaux… Un bien rare qui séduira les amateurs d’équitation !
🔎 Caractéristiques techniques :
✔️ Double vitrage PVC
✔️ Chauffage central au gaz
✔️ PEB D (n° 20251006020556)
✔️ Installation électrique non conforme
✔️ Panneaux photovoltaïques
Si vous êtes arrivé jusqu’ici, c’est que cette maison mérite clairement une visite 😉
📞 Contactez-nous au 067 70 01 04
📩 Ou par mail : Welchome@era.be
À très vite ! ✨

Spécifications

Caractéristiques

Général

Surface habitable
272.00m²
Superficie du terrain
5096.00m²
Type de superficie
Brut
Environnement
Résidentiel
A proximité d'écoles
A proximité des transports en commun
A proximité de gare ferroviaire
Revenu cadastral net
€304,00

Chauffage

Type
Chauffage central
Radiateurs
Cassette à bois
Chaudière
Combustible chauffage
Mazout

Divers

Menuiserie
Double vitrage
Isolation
Détails sur demande
Eau chaude
Non précisé

Bâtiment

Année de construction
de 1875 à 1899
Ascenseur disponible
Non

Jardin

Surface calculée
4932 m²

Chambre à coucher

1 chambre(s) possible(s)

Chambre à coucher

1 chambre(s) possible(s)

Chambre à coucher

1 chambre(s) possible(s)

Chambre à coucher

1 chambre(s) possible(s)

Chambre à coucher

1 chambre(s) possible(s)

Général

Patrimoine classé
Non
Repris dans l’inventaire du patrimoine
Non

Énergie et électricité

Inspection électrique
Attestation électrique - Non-Conforme
Raccordements
Electricité
Panneaux photovoltaiques
Eau de ville
Téléphone
Installation électrique ancienne
Internet
Détails sur demande
Certificat PEB
Oui
Classe énergétique
D
Numéro de certificat
20251006020556
Consommation spécifique d'énergie calculée
291
Consommation totale d'énergie calculée
79257

Information urbanistique

Permis d'urbanisme
Permis non accordé
obligation d'urbanisme
Non
Dans l'inventaire des locaux inexploités
Non
Objet du plan de alignement
Non
mesure de récupération
Aucune mesure judiciaire ou administrative imposée
Autorisation de lotissement
Non
Droit de préemption
Non
Zone inondable
Bien immobilier situé en zone non inondable
Obligation de rénovation
Niet van toepassing/Non-applicable
En zone sensible à l'eau
Niet van toepassing/Non-applicable
Hugord Plaisant
Rue saint-marcoult 56 , 7830 Silly