
Rez-de-chaussée commercial en plein centre de Neufchâteau
En option - prix sur demande




Afficher +5 photo(s)





Commerce
3F
160 m² de surface habitable
254 m² de surface de terrain
Code du bien : 1438411
Description du bien
Spécifications
Caractéristiques
Général
Surface habitable
160.00m²
Superficie du terrain
254.00m²
Surface bâtie
160.00m²
Largeur du terrain
14.00m
Type de superficie
Brut
Environnement
Centre
A proximité d'écoles
Centre administratif
A proximité de gare ferroviaire
Revenu cadastral net
€1631,00
Chauffage
Type
Chauffage central
Radiateurs
Radiateurs
Combustible chauffage
Mazout
Divers
Menuiserie
Aluminium
Double vitrage
Isolation
Châssis
Eau chaude
Boiler sur chauffage central
Bâtiment
Année de construction
de 1900 à 1918
Divers
Alarme
Ascenseur disponible
Non
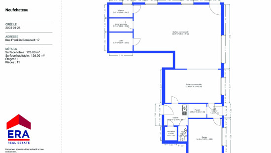
Détails
Hall d'entrée
Bureau
Bureau
Cuisine
Toilette
Informations techniques et mentions légales
Général
Patrimoine classé
Non
Repris dans l’inventaire du patrimoine
Non
Énergie et électricité
Raccordements
Raccordements aux égouts
Eau de ville
Chauffage: Tarif de jour/nuit
Classe énergétique
-
Information urbanistique
Permis d'urbanisme
Permis non accordé
obligation d'urbanisme
Non
Dans l'inventaire des locaux inexploités
Non
Objet du plan de alignement
Non
mesure de récupération
Aucune mesure judiciaire ou administrative imposée
Autorisation de lotissement
Non
Droit de préemption
Non
Destination urbaine
La zone d'habitat
Zone inondable
Bien immobilier situé en zone non inondable
Obligation de rénovation
Niet van toepassing/Non-applicable
En zone sensible à l'eau
Niet van toepassing/Non-applicable
Fermer
