
Instapklare woning met zuidgerichte tuin en garage (46m²)
€ 395 000




Afficher +27 photo(s)



























Maison
3F
3 chambres (5 possible)
1 salle(s) de bain(s)
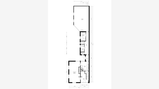
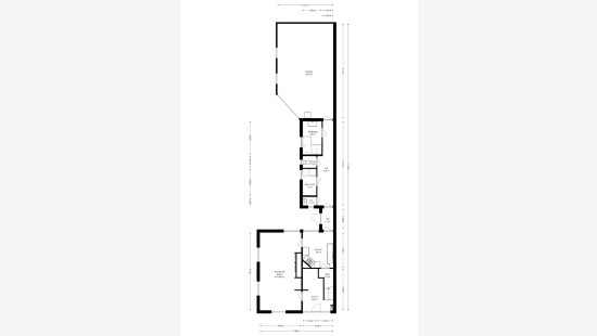
237 m² de surface habitable
628 m² de surface de terrain
D
Code du bien : 1460591
Spécifications
Caractéristiques
Général
Surface habitable
237.00m²
Superficie du terrain
628.00m²
Surface bâtie
146.00m²
Type de superficie
Brut
Orientation terrain
S
Environnement
Centre d'habitation
Environnement verdoyant
Rural
A proximité des transports en commun
Revenu cadastral net
€545,00
Chauffage
Type
Chauffage central
Radiateurs
Radiateurs
Combustible chauffage
Gaz
Divers
Menuiserie
Simple vitrage
Double vitrage
Vitrage super-isolant à haut rendement
Isolation
Toit
Vitrage
Isolation de toit
Eau chaude
Boiler sur chauffage central
Bâtiment
Année de construction
1963
Nombre d'étages
4
Divers
Stores
Méthode de construction : Maçonnerie traditionnelle
Ascenseur disponible
Non
Détails
Chambre à coucher
Chambre à coucher
Chambre à coucher
Grenier
Living
Buanderie
Toilette
Hall de nuit
Cuisine
Hall d'entrée
Garage
Salle de bains
Jardin
Cave
Informations techniques et mentions légales
Général
Patrimoine classé
Non
Repris dans l’inventaire du patrimoine
Non
Énergie et électricité
Inspection électrique
Attestation électrique - Non-Conforme
Raccordements
Gaz
Electricité
Raccordements aux égouts
Télédistribution
Eau de ville
Internet
Certificat PEB
Oui
Classe énergétique
D
Numéro de certificat
20260212-0003801299-RES-1
Consommation spécifique d'énergie calculée
372
Information urbanistique
Permis d'urbanisme
Permis non accordé
obligation d'urbanisme
Non
Dans l'inventaire des locaux inexploités
Non
Objet du plan de alignement
Non
mesure de récupération
Geen rechterlijke herstelmaatregel of bestuurlijke maatregel opgelegd
Autorisation de lotissement
Non
Droit de préemption
Non
Destination urbaine
Zone d'habitation
Zone inondable
Bien immobilier situé en zone non inondable
Score P(arcel)
klasse D
Score G (bâtiment)
klasse C
Obligation de rénovation
Niet van toepassing/Non-applicable
En zone sensible à l'eau
Niet van toepassing/Non-applicable
Fermer
