
Maison
2F
4 chambre(s)
1 salle(s) de bain(s)
226 m² de surface habitable
780 m² de surface de terrain
F
Code du bien : 1443086
Description du bien
Spécifications
Caractéristiques
Général
Surface habitable
226.00m²
Superficie du terrain
780.00m²
Surface bâtie
143.00m²
Largeur du terrain
33.70m
Type de superficie
Brut
Orientation terrain
E
Environnement
Endroit avec beaucoup de passage
Environnement verdoyant
A proximité d'écoles
Routes d'acces
Revenu cadastral net
€832,00
Chauffage
Type
Chauffage central
Radiateurs
Cassette à bois
Radiateurs
Combustible chauffage
Mazout
Divers
Menuiserie
PVC
Bois
Simple vitrage
Double vitrage
Isolation
Toit
Eau chaude
Boiler électrique
Bâtiment
Année de construction
1971
Etage
0
Nombre d'étages
2
Divers
Méthode de construction : Maçonnerie traditionnelle
Ascenseur disponible
Non
Détails
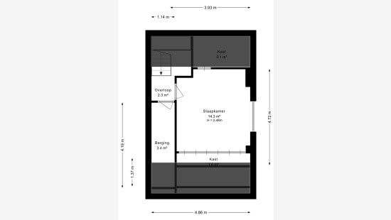
Chambre à coucher
Chambre à coucher
Chambre à coucher
Chambre à coucher
Salle de bains
Garage
Débarras
Terrasse
Chaufferie
Cave
Cuisine
Hall d'entrée
Salle à manger
Living
Jardin
Place de parking
Chalet de jardin
Grenier
Informations techniques et mentions légales
Général
Patrimoine classé
Non
Repris dans l’inventaire du patrimoine
Non
Énergie et électricité
Inspection électrique
Attestation électrique - Non-Conforme
Raccordements
Electricité
Raccordements aux égouts
Télédistribution
Eau de ville
Téléphone
Certificat PEB
Oui
Classe énergétique
F
Numéro de certificat
20251219-0003760912-RES-1
Consommation spécifique d'énergie calculée
684
Information urbanistique
Permis d'urbanisme
Permis accordé
obligation d'urbanisme
Non
Dans l'inventaire des locaux inexploités
Non
Objet du plan de alignement
Non
mesure de récupération
Aucune mesure judiciaire ou administrative imposée
Autorisation de lotissement
Non
Droit de préemption
Non
Destination urbaine
Zone d'habitation
Zone inondable
Bien immobilier situé en zone non inondable
Score P(arcel)
klasse A
Score G (bâtiment)
klasse A
Obligation de rénovation
Van toepassing/Applicable
En zone sensible à l'eau
Niet van toepassing/Non-applicable
Fermer



























