
Maison 2 chambres sur grand terrain à Houffalize
€ 310 000
Lancer la vidéo
Journée Maisons Ouvertes le 14/03 de 16:00 à 17:00




Afficher +13 photo(s)













Maison
4F
2 chambre(s)
1 salle(s) de bain(s)
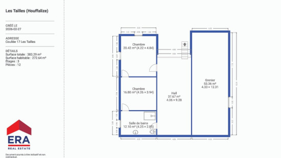
256 m² de surface habitable
5,910 m² de surface de terrain
Code du bien : 1461969
Description du bien
Spécifications
Caractéristiques
Général
Surface habitable
256.00m²
Superficie du terrain
5910.00m²
Type de superficie
Brut
Environnement
Zone touristique
Rural
A proximité d'écoles
A proximité des transports en commun
Revenu cadastral net
€683,00
Chauffage
Type
Chauffage central
Radiateurs
Cassette à bois
Radiateurs
Chaudière
Combustible chauffage
Bois
Mazout
Divers
Menuiserie
Double vitrage
Isolation
Détails sur demande
Isolation de toit
Eau chaude
Boiler sur chauffage central
Bâtiment
Année de construction
avant 1850
Ascenseur disponible
Non
Détails
Chambre à coucher
Chambre à coucher
Garage
Garage
Living
Living
Cuisine
Toilette
Salle de douche
Hall
Grenier
Grenier
Espace polyvalent
Espace polyvalent
Room without title
Informations techniques et mentions légales
Général
Patrimoine classé
Non
Repris dans l’inventaire du patrimoine
Non
Énergie et électricité
Inspection électrique
Attestation électrique - Conforme
Raccordements
Fosse septique
Télédistribution
Eau de ville
Téléphone
Électricité avec tarif de nuit
Internet
Certificat PEB
Oui
Classe énergétique
C
PEB
C
Numéro de certificat
20260129027005
Consommation spécifique d'énergie calculée
208
Emission de CO2
43.00
Consommation totale d'énergie calculée
53218
Information urbanistique
Permis d'urbanisme
Bien construit avant 1962
obligation d'urbanisme
Oui
Dans l'inventaire des locaux inexploités
Non
Objet du plan de alignement
Non
mesure de récupération
Aucune mesure judiciaire ou administrative imposée
Autorisation de lotissement
Non
Droit de préemption
Non
Destination urbaine
La zone agricole;La zone d'habitat à caractère rural
Obligation de rénovation
Niet van toepassing/Non-applicable
En zone sensible à l'eau
Niet van toepassing/Non-applicable
Fermer