
Terrain
3F
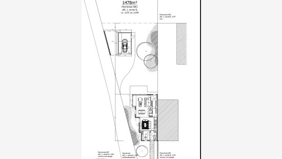
1,478 m² de surface de terrain
Code du bien : 1454454
Description du bien
Spécifications
Caractéristiques
Général
Superficie du terrain
1478.00m²
Largeur du terrain
7.26m
Type de superficie
Brut
Environnement
Périphérie
Centre d'habitation
Environnement verdoyant
Routes d'acces
Revenu cadastral net
€8,00
Chauffage
Type
Non précisé
Radiateurs
Non précisé
Combustible chauffage
Non précisé
Divers
Menuiserie
Non précisé
Isolation
Non précisé
Eau chaude
Non précisé
Bâtiment
Ascenseur disponible
Non
Informations techniques et mentions légales
Général
Patrimoine classé
Non
Repris dans l’inventaire du patrimoine
Non
Énergie et électricité
Raccordements
Non précisé
Égouttage: à raccorder
Certificat PEB
Pas d'application
Classe énergétique
-
Information urbanistique
Permis d'urbanisme
Permis non accordé
obligation d'urbanisme
Non
Dans l'inventaire des locaux inexploités
Non
Objet du plan de alignement
Non
mesure de récupération
Aucune mesure judiciaire ou administrative imposée
Autorisation de lotissement
Non
Droit de préemption
Non
Destination urbaine
Landschappelijk waardevol agrarisch gebied;Woongebied
Zone inondable
Bien immobilier situé en zone non inondable
Score P(arcel)
klasse A
Score G (bâtiment)
klasse A
Obligation de rénovation
Niet van toepassing/Non-applicable
En zone sensible à l'eau
Niet van toepassing/Non-applicable
Fermer







