
Charmante, instapklare woning met leuke tuin en verzicht!
€ 319 000




Afficher +20 photo(s)




















Maison
3F
2 chambre(s)
1 salle(s) de bain(s)
110 m² de surface habitable
262 m² de surface de terrain
D
Code du bien : 1413555
Spécifications
Caractéristiques
Général
Surface habitable
110.00m²
Superficie du terrain
262.00m²
Surface bâtie
60.00m²
Type de superficie
Brut
Environnement
Environnement verdoyant
Rural
Vue dégagée
Routes d'acces
Revenu cadastral net
€423,00
Chauffage
Type
Chauffage central
Radiateurs
Radiateurs
Combustible chauffage
Gaz
Divers
Menuiserie
Double vitrage
Isolation
Vitrage
Plaque de fixation
Isolation de toit
Eau chaude
Serpentin de chauffe
Bâtiment
Année de construction
1960
Ascenseur disponible
Non
Panneaux solaires
Panneaux solaires
Panneaux solaires - Inclus dans le prix
Capacité annuelle totale
2800.00
Détails
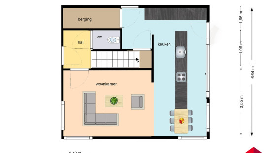
Hall d'entrée
Toilette
Living
Cuisine
Cave
Buanderie
Chambre à coucher
Dressing
Chambre à coucher
Salle de bains
Grenier
Informations techniques et mentions légales
Général
Patrimoine classé
Non
Repris dans l’inventaire du patrimoine
Non
Énergie et électricité
Inspection électrique
Attestation électrique - Conforme
Raccordements
Gaz
Electricité
Réservoir eau de pluie
Gaz disponible dans la rue
Raccordements aux égouts
Panneaux photovoltaiques
Internet
Certificat PEB
Oui
Classe énergétique
D
Numéro de certificat
20250924-00036937-RES-1
Consommation spécifique d'énergie calculée
311
Information urbanistique
Permis d'urbanisme
Permis accordé
obligation d'urbanisme
Oui
Dans l'inventaire des locaux inexploités
Non
Objet du plan de alignement
Non
Autorisation de lotissement
Non
Droit de préemption
Non
Destination urbaine
Woongebied met landelijk karakter
Zone inondable
Bien immobilier situé en zone non inondable
Score P(arcel)
klasse A
Score G (bâtiment)
klasse A
Obligation de rénovation
Niet van toepassing/Non-applicable
En zone sensible à l'eau
Niet van toepassing/Non-applicable
Fermer
