
Gezinswoning met verbouwpotentieel op goede locatie in Eeklo
€ 149 000




Afficher +16 photo(s)
















Maison
2F
2 chambres (3 possible)
1 salle(s) de bain(s)
119 m² de surface habitable
50 m² de surface de terrain
F
Code du bien : 1433095
Description du bien
Spécifications
Caractéristiques
Général
Surface habitable
119.00m²
Superficie du terrain
50.00m²
Surface bâtie
45.00m²
Type de superficie
Brut
Environnement
Centre
Environnement social
Centre d'habitation
Environnement verdoyant
A proximité d'écoles
A proximité des transports en commun
A proximité de parc
A proximité de gare ferroviaire
Hôpital à proximité
Revenu cadastral net
€317,00
Chauffage
Type
Chauffage individuel
Radiateurs
Poêle(s)
Combustible chauffage
Gaz
Divers
Menuiserie
Aluminium
PVC
Simple vitrage
Double vitrage
Isolation
Détails sur demande
Eau chaude
Boiler électrique
Bâtiment
Année de construction
1933
Divers
Stores manuels
Ascenseur disponible
Non
Détails
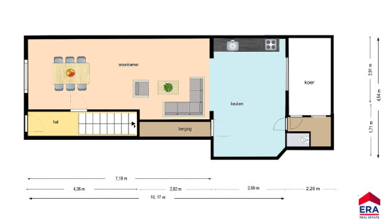
Cuisine
Buanderie
Débarras
Salle de bains
Toilette
Living
Chambre à coucher
Chambre à coucher
Grenier
Cour
Informations techniques et mentions légales
Général
Patrimoine classé
Non
Repris dans l’inventaire du patrimoine
Non
Énergie et électricité
Inspection électrique
Attestation électrique demandée
Raccordements
Gaz
Electricité
Fosse septique
Gaz disponible dans la rue
Raccordements aux égouts
Eau de ville
Téléphone
Internet
Certificat PEB
Demandé
Classe énergétique
F
Numéro de certificat
20251119-0003737384-RES-1
Consommation spécifique d'énergie calculée
584
Information urbanistique
Permis d'urbanisme
Bien construit avant 1962
obligation d'urbanisme
Oui
Dans l'inventaire des locaux inexploités
Non
Objet du plan de alignement
Non
Autorisation de lotissement
Non
Droit de préemption
Non
Destination urbaine
Zone d'habitation
Zone inondable
Bien immobilier situé en zone non inondable
Score P(arcel)
klasse A
Score G (bâtiment)
klasse A
Obligation de rénovation
Van toepassing/Applicable
En zone sensible à l'eau
Niet van toepassing/Non-applicable
Fermer
