
Halfopen 3-slaapkamerwoning met garage en EPC B
Vendu




Afficher +16 photo(s)
















Maison
3F
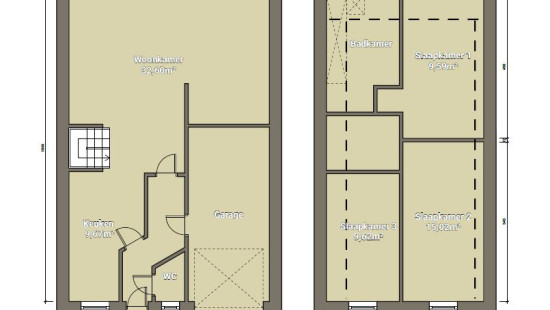
3 chambre(s)
1 salle(s) de bain(s)
147 m² de surface habitable
117 m² de surface de terrain
B
Code du bien : 1439802
Spécifications
Caractéristiques
Général
Surface habitable
147.00m²
Superficie du terrain
117.00m²
Type de superficie
Brut
Environnement
Périphérie
Revenu cadastral net
€793,00
Chauffage
Type
Chauffage central
Radiateurs
Chaudière à condensation
Combustible chauffage
Gaz
Divers
Menuiserie
PVC
Vitrage super-isolant à haut rendement
Isolation
Toit
Plancher
Vitrage
Murs creux
Eau chaude
Boiler sur chauffage central
Bâtiment
Année de construction
1999
Nombre d'étages
3
Ascenseur disponible
Non
Détails
Hall de nuit
Garage
Toilette
Cuisine
Living
Salle de bains
Chambre à coucher
Chambre à coucher
Chambre à coucher
Grenier
Jardin
Hall d'entrée
Informations techniques et mentions légales
Général
Patrimoine classé
Non
Repris dans l’inventaire du patrimoine
Non
Énergie et électricité
Inspection électrique
Attestation électrique - Conforme
Raccordements
Gaz
Electricité
Télédistribution
Eau de ville
Internet
Certificat PEB
Oui
Classe énergétique
B
Numéro de certificat
20231002-0003004392-RES-1
Consommation spécifique d'énergie calculée
164
Information urbanistique
Permis d'urbanisme
Permis accordé
obligation d'urbanisme
Non
Dans l'inventaire des locaux inexploités
Non
Objet du plan de alignement
Non
mesure de récupération
Geen rechterlijke herstelmaatregel of bestuurlijke maatregel opgelegd
Autorisation de lotissement
Oui
Droit de préemption
Non
Destination urbaine
Zone d'habitation
Zone inondable
Bien immobilier situé en zone non inondable
Score P(arcel)
klasse A
Score G (bâtiment)
klasse A
Obligation de rénovation
Niet van toepassing/Non-applicable
En zone sensible à l'eau
Niet van toepassing/Non-applicable
Fermer
