Te renoveren woning in rustige buurt te Brasschaat

€ 315 000

Description du bien

Te koop: gesloten woning met een mooie tuin in de Miksebeekstraat, op korte afstand van het centrum van Brasschaat.

Deze woning in Brasschaat biedt volop mogelijkheden voor wie graag een huis naar eigen smaak wil renoveren. Dankzij de veranda met directe connectie naar de tuin geniet je van een aangename overgang tussen binnen en buiten. De ligging vlakbij het centrum zorgt voor een vlotte toegang tot winkels, scholen, openbaar vervoer en het ziekenhuis.

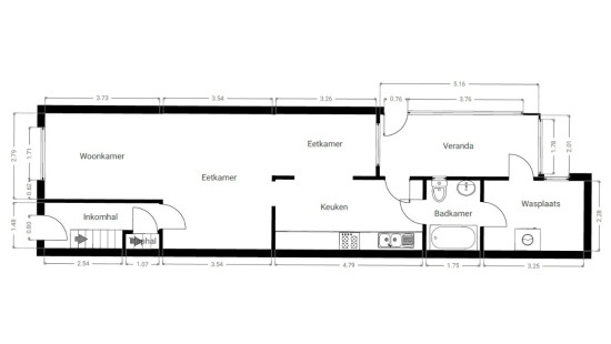
Belangrijkste ruimtes:
• Woonkamer met natuurlijke lichtinval
• Veranda met toegang tot de tuin
• Keuken met dubbele spoelbak, dampkap en gaskookplaat
• Wasplaats met aansluitingen voor wasmachine en droogkast, plus verwarmingsketel
• Deels onderkelderde ruimte
• Badkamer met ligbad, toilet en wastafel
• Twee slaapkamers
• Extra opbergruimte achteraan 

Troeven:
• Naar eigen smaak te renoveren 
• Veranda met connectie naar de tuin
• Ideale ligging: rustig en nabij het centrum van Brasschaat

Ideaal voor wie op zoek is naar een combinatie van rust, ruimte en een goede bereikbaarheid. Contacteer ERA NOORD via 03 314 81 91 of info@eranoord.be voor meer informatie of een bezichtiging. 

JOUW DROOMHUIS. ZO GEVONDEN!
 

Spécifications

Caractéristiques

Général

Surface habitable
160.00m²
Superficie du terrain
325.00m²
Surface bâtie
82.00m²
Largeur du terrain
6.00m
Type de superficie
Brut
Orientation terrain
Nord-Ouest
Façade orientation
Sud-Est
Environnement
Centre
Résidentiel
A proximité des transports en commun
Hôpital à proximité
Revenu cadastral net
€314,00

Chauffage

Type
Chauffage central
Radiateurs
Radiateurs
Combustible chauffage
Gaz

Divers

Menuiserie
Bois
Double vitrage
Isolation
Détails sur demande
Eau chaude
Boiler sur chauffage central

Bâtiment

Année de construction
de 1919 à 1930
Nombre d'étages
2
Ascenseur disponible
Non

Chambre à coucher

Propriétés de la chambre
Vinyl
1 chambre(s) possible(s)

Chambre à coucher

Propriétés de la chambre
Vinyl
1 chambre(s) possible(s)

Living

Propriétés de la chambre
Carrelage

Cuisine

Propriétés de la chambre
Carrelage
Objets de la chambre
Evier double
Hotte aspirante
Taque de cuisson (au gaz)

Veranda

Propriétés de la chambre
Carrelage

Salle de bains

Propriétés de la chambre
Carrelage
Objets de la chambre
Bain
Toilette
Lavabo simple

Buanderie

Objets de la chambre
Raccordement sèche-linge
Raccordement machine à laver
Chaudière

Cave

Objets de la chambre
En parte sous-cave

Général

Patrimoine classé
Non
Repris dans l’inventaire du patrimoine
Non

Énergie et électricité

Raccordements
Gaz
Electricité
Eau de ville
Téléphone
Classe énergétique
F
Consommation spécifique d'énergie calculée
1118

Information urbanistique

Permis d'urbanisme
Permis non accordé
obligation d'urbanisme
Non
Dans l'inventaire des locaux inexploités
Non
Objet du plan de alignement
Non
mesure de récupération
Aucune mesure judiciaire ou administrative imposée
Autorisation de lotissement
Non
Droit de préemption
Non
Destination urbaine
Zone d'habitation
Zone inondable
Bien immobilier situé en zone non inondable
Score P(arcel)
klasse A
Score G (bâtiment)
klasse A
Obligation de rénovation
Van toepassing/Applicable
En zone sensible à l'eau
Niet van toepassing/Non-applicable
Karolien Huybrechts
Miksebeekstraat 150 , 2930 Brasschaat