Description du bien

[[ CE BIEN PARTICIPE À LA JOURNÉE MAISONS OUVERTES ERA LE 14/3 DE 9:30 À 10:30 ]]

VISITE VIRTUELLE 3D : https://my.matterport.com/show/?m=r6DiD9TDV6s
Située Avenue Henri de Withem 8 à Braine-l’Alleud, cette charmante villa construite en 1977 développe une surface habitable de 182 m² sur un terrain de 5 ares 84, dans un quartier calme et recherché.
La maison bénéficie d’un environnement recherché, à proximité d’écoles (Collège Cardinal Mercier, Institut Vallée Bailly, Athénée Riva Bella), de commerces d’alimentation, de la gare (train et bus), d’un arrêt de bus à proximité ainsi que d’un accès rapide au ring, offrant un équilibre parfait entre tranquillité résidentielle et facilité d’accès aux commodités.
Elle offre de beaux volumes et un cadre de vie idéal pour une famille à la recherche d’espace et de confort. Son agréable séjour et salle à manger, prolongés par une véranda, apportent luminosité et convivialité en toute saison.
La maison se compose au rez-de-chaussée d’un spacieux hall d’entrée avec vestiaire et WC, d’un séjour/salle à manger lumineux de 47m2 offrant une agréable vue sur le jardin, d’une agréable véranda, d’une cuisine équipée de qualité ainsi que d’un espace de stockage.
À l’étage, le hall de nuit dessert trois chambres de 19 m², 12 m² et 12 m² (dont une avec lavabo), un bureau de 7,5 m² idéal pour le télétravail, une spacieuse salle de bains de 11,5 m² avec placards ainsi qu’une toilette séparée avec lave-main.
Le deuxième étage offre un vaste grenier sur toute la surface de la maison.
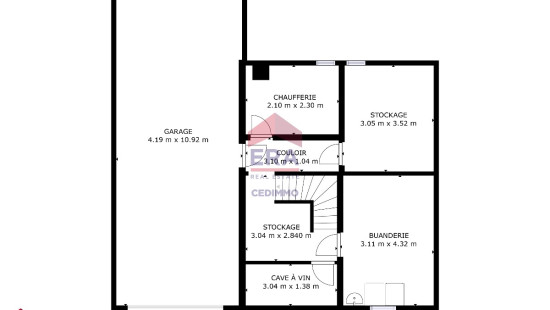
Le sous-sol se compose de plusieurs caves sur toute l’empreinte du bâtiment comprenant une buanderie de 12 m², une chaufferie de 6 m², deux caves de 10 m² et 4 m² ainsi qu’un hall, offrant de nombreuses possibilités de rangement. Un grand double garage de 4 m sur 10,5 m complète l’ensemble.
Le bien est équipé d’un chauffage central au gaz avec chaudière à condensation et radiateurs, ainsi que de châssis en PVC double vitrage.
Revenu cadastral : 2.788 € - Précompte immobilier : 2.307,64 € - A visiter sans tarder !

Spécifications

Caractéristiques

Général

Surface habitable
182.10m²
Superficie du terrain
584.00m²
Type de superficie
Brut
Environnement
A proximité d'écoles
A proximité des transports en commun
A proximité de gare ferroviaire
Revenu cadastral net
€2788,00

Chauffage

Type
Chauffage central
Radiateurs
Radiateurs
Chaudière à condensation
Combustible chauffage
Gaz

Divers

Menuiserie
PVC
Double vitrage
Isolation
Détails sur demande
Eau chaude
Boiler sur chauffage central

Bâtiment

Année de construction
1977
Divers
Alarme
Ascenseur disponible
Non

Jardin

Surface calculée
301 m²

Hall d'entrée

Surface calculée
11 m²

Toilette

Surface calculée
2 m²

Cuisine

Surface calculée
13 m²

Hall

Surface calculée
2 m²

Arrière-cuisine

Surface calculée
2 m²

Living

Surface calculée
34 m²

Salle à manger

Surface calculée
13 m²

Veranda

Surface calculée
16 m²

Hall de nuit

Surface calculée
8 m²

Toilette

Surface calculée
2 m²

Chambre à coucher

Surface calculée
12 m²
1 chambre(s) possible(s)

Chambre à coucher

Surface calculée
12 m²
1 chambre(s) possible(s)

Chambre à coucher

Surface calculée
19 m²
1 chambre(s) possible(s)

Bureau

Surface calculée
7 m²

Salle de bains

Surface calculée
12 m²

Buanderie

Surface calculée
13 m²

Chaufferie

Surface calculée
5 m²

Cave

Surface calculée
4 m²

Cave

Surface calculée
9 m²

Cave

Surface calculée
11 m²

Garage

Surface calculée
46 m²

Général

Patrimoine classé
Non
Repris dans l’inventaire du patrimoine
Non

Énergie et électricité

Inspection électrique
Attestation électrique demandée
Raccordements
Gaz
Electricité
Eau de ville
Certificat PEB
Demandé
Classe énergétique
-

Information urbanistique

Permis d'urbanisme
Permis accordé
obligation d'urbanisme
Non
Dans l'inventaire des locaux inexploités
Non
Objet du plan de alignement
Non
Autorisation de lotissement
Non
Droit de préemption
Non
Zone inondable
Bien immobilier situé en zone non inondable
Obligation de rénovation
Niet van toepassing/Non-applicable
En zone sensible à l'eau
Niet van toepassing/Non-applicable
Jordan Léonard
Avenue Henri de Withem 8 , 1420 Braine-l'Alleud