Description du bien

L’agence ERA B-LUX vous propose cette maison 3 façades idéalement située en plein centre de Bertrix, à proximité des écoles, des commodités, de la gare et des grands axes.
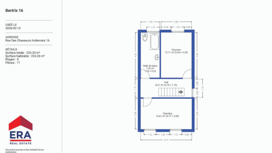
Le bien se compose de 4 chambres ainsi que d’un grenier aménageable, offrant un beau potentiel d’agrandissement selon vos besoins. Les volumes sont fonctionnels et permettent une organisation confortable pour une famille.
La maison dispose également de caves sous toute la surface du bâtiment, idéales pour le stockage ou l’aménagement d’espaces complémentaires.
Un garage complète l’ensemble, un atout non négligeable en centre-ville.
Une opportunité intéressante pour acquérir une maison familiale bien située, avec potentiel d’évolution.
Contactez ERA B-LUX au +32 61 21 07 50 pour plus d’informations ou organiser une visite.

Spécifications

Caractéristiques

Général

Surface habitable
162.00m²
Superficie du terrain
474.00m²
Type de superficie
Brut
Environnement
A proximité d'écoles
A proximité des transports en commun
A proximité de gare ferroviaire
Revenu cadastral net
€604,00

Chauffage

Type
Chauffage individuel
Radiateurs
Poêle à pellet
Combustible chauffage
Pellets

Divers

Menuiserie
PVC
Double vitrage
Isolation
Détails sur demande
Eau chaude
Boiler électrique

Bâtiment

Année de construction
1951
Ascenseur disponible
Non

Cave

Surface calculée
14 m²

Cave

Surface calculée
8 m²

Cave

Surface calculée
17 m²

Cave

Surface calculée
16 m²

Living

Surface calculée
21 m²

Hall

Surface calculée
7 m²

Cuisine

Surface calculée
14 m²

Salle à manger

Surface calculée
19 m²

Salle de bains

Surface calculée
7 m²

Chambre à coucher

Surface calculée
12 m²
1 chambre(s) possible(s)

Hall

Surface calculée
8 m²

Chambre à coucher

Surface calculée
14 m²
1 chambre(s) possible(s)

Chambre à coucher

Surface calculée
15 m²
1 chambre(s) possible(s)

Hall

Surface calculée
5 m²

Dressing

Surface calculée
9 m²

Grenier

Surface calculée
12 m²

Grenier

Surface calculée
25 m²

Garage

Surface calculée
28 m²

Jardin

Surface calculée
592 m²

Général

Patrimoine classé
Non
Repris dans l’inventaire du patrimoine
Non

Énergie et électricité

Inspection électrique
Attestation électrique - Non-Conforme
Raccordements
Electricité
Raccordements aux égouts
Eau de ville
Certificat PEB
Oui
Classe énergétique
D
PEB
D
Niveau E
D
Numéro de certificat
20250227027931
Consommation spécifique d'énergie calculée
287
Emission de CO2
8.00
Consommation totale d'énergie calculée
46503

Information urbanistique

Permis d'urbanisme
Bien construit avant 1962
obligation d'urbanisme
Non
Dans l'inventaire des locaux inexploités
Non
Objet du plan de alignement
Non
mesure de récupération
Aucune mesure judiciaire ou administrative imposée
Autorisation de lotissement
Non
Droit de préemption
Non
Destination urbaine
La zone d'habitat
Zone inondable
Bien immobilier situé en zone non inondable
Obligation de rénovation
Niet van toepassing/Non-applicable
En zone sensible à l'eau
Niet van toepassing/Non-applicable
Quentin Fourny
Rue des Chasseurs Ardennais 16 , 6880 Bertrix