
Maison
4F
2 chambre(s)
1 salle(s) de bain(s)
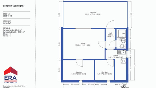
50 m² de surface habitable
10,377 m² de surface de terrain
G
Code du bien : 1417285
Description du bien
Spécifications
Caractéristiques
Général
Surface habitable
50.00m²
Superficie du terrain
10377.00m²
Type de superficie
Brut
Environnement
Environnement verdoyant
Rural
Chauffage
Type
Chauffage individuel
Radiateurs
Non précisé
Combustible chauffage
Non précisé
Divers
Menuiserie
Bois
Double vitrage
Isolation
Détails sur demande
Eau chaude
Boiler électrique
Bâtiment
Année de construction
1954
Ascenseur disponible
Non
Détails
Chambre à coucher
Chambre à coucher
Terrasse
Living
Hall
Salle de douche
Cuisine
Informations techniques et mentions légales
Général
Patrimoine classé
Non
Repris dans l’inventaire du patrimoine
Non
Énergie et électricité
Inspection électrique
Attestation électrique demandée
Raccordements
Electricité
Eau de ville
Classe énergétique
G
Niveau E
G
Numéro de certificat
20251014033788
Consommation spécifique d'énergie calculée
741
Emission de CO2
154.00
Consommation totale d'énergie calculée
36994
Information urbanistique
Permis d'urbanisme
Permis non accordé
obligation d'urbanisme
Non
Dans l'inventaire des locaux inexploités
Non
Objet du plan de alignement
Non
Autorisation de lotissement
Non
Droit de préemption
Non
Destination urbaine
La zone agricole;La zone forestière
Obligation de rénovation
Niet van toepassing/Non-applicable
En zone sensible à l'eau
Niet van toepassing/Non-applicable
Fermer















