
Spacieuse villa 5 chambres avec vue dégagée
En option - prix sur demande




Afficher +26 photo(s)


























Maison
4F
5 chambre(s)
5 salle(s) de bain(s)
275 m² de surface habitable
1,331 m² de surface de terrain
E
Code du bien : 1401137
Description du bien
Spécifications
Caractéristiques
Général
Surface habitable
275.00m²
Superficie du terrain
1331.00m²
Type de superficie
Brut
Orientation terrain
Nord-Est
Environnement
Environnement verdoyant
Résidentiel
A proximité d'écoles
Vue dégagée
Revenu cadastral net
€1665,00
Chauffage
Type
Chauffage central
Radiateurs
Cassette à bois
Radiateurs
Chaudière
Combustible chauffage
Mazout
Divers
Menuiserie
Aluminium
Bois
Double vitrage
Isolation
Détails sur demande
Eau chaude
Boiler sur chauffage central
Bâtiment
Année de construction
1977
Ascenseur disponible
Non
Détails
Hall d'entrée
Hall
Toilette
Living
Cuisine
Arrière-cuisine
Veranda
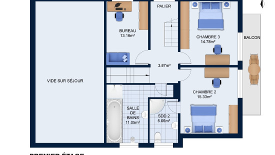
Hall
Chambre à coucher
Salle de bains
Hall de nuit
Bureau
Chambre à coucher
Salle de bains
Chambre à coucher
Salle de bains
Chambre à coucher
Salle de bains
Dressing
Chambre à coucher
Salle de bains
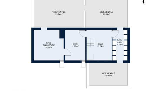
Cave
Terrasse
Jardin
Abris pour voiture
Informations techniques et mentions légales
Général
Patrimoine classé
Non
Repris dans l’inventaire du patrimoine
Non
Énergie et électricité
Inspection électrique
Attestation électrique demandée
Contenu réservoir de carburant
5000.00
Raccordements
Electricité
Réservoir eau de pluie
Raccordements aux égouts
Télédistribution
Eau de ville
Certificat PEB
Oui
Classe énergétique
E
Niveau E
E
Numéro de certificat
20160627011403
Information urbanistique
Permis d'urbanisme
Permis accordé
obligation d'urbanisme
Non
Dans l'inventaire des locaux inexploités
Non
Objet du plan de alignement
Non
Autorisation de lotissement
Non
Droit de préemption
Non
Destination urbaine
La zone d'habitat à caractère rural
Zone inondable
Bien immobilier situé en zone non inondable
Obligation de rénovation
Niet van toepassing/Non-applicable
En zone sensible à l'eau
Niet van toepassing/Non-applicable
Fermer
