
Spacieuse maison à rénover à Awans
À partir de € 229 000
Journée Maisons Ouvertes le 14/03 de 9:30 à 10:30




Afficher +24 photo(s)
























Maison
2F
3 chambres (5 possible)
1 salle(s) de bain(s)
139 m² de surface habitable
330 m² de surface de terrain
E
Code du bien : 1444565
Description du bien
Spécifications
Caractéristiques
Général
Surface habitable
138.90m²
Superficie du terrain
330.00m²
Surface exploitable
324.40m²
Type de superficie
Net
Orientation terrain
Nord-Ouest
Façade orientation
Sud-Est
Environnement
Centre d'habitation
Rural
A proximité d'écoles
A proximité des transports en commun
Routes d'acces
Revenu cadastral net
€461,00
Chauffage
Type
Chauffage central
Radiateurs
Radiateurs
Combustible chauffage
Mazout
Divers
Menuiserie
PVC
Double vitrage
Isolation
Détails sur demande
Eau chaude
Chauffe-eau sur chauffage central
Bâtiment
Année de construction
avant 1850
Ascenseur disponible
Non
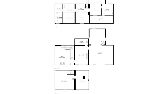
Détails
Hall d'entrée
Salle à manger
Cuisine
Living
Hall de nuit
Toilette
Salle de bains
Chambre à coucher
Chambre à coucher
Chambre à coucher
Grenier
Cave
Garage
Informations techniques et mentions légales
Général
Patrimoine classé
Non
Repris dans l’inventaire du patrimoine
Non
Énergie et électricité
Inspection électrique
Attestation électrique demandée
Raccordements
Electricité
Gaz disponible dans la rue
Raccordements aux égouts
Télédistribution
Eau de ville
Téléphone
Internet
Certificat PEB
Oui
Classe énergétique
E
Niveau E
E
Numéro de certificat
20241216014347
Consommation spécifique d'énergie calculée
424
Emission de CO2
105.00
Consommation totale d'énergie calculée
73234
Information urbanistique
Permis d'urbanisme
Bien construit avant 1962
obligation d'urbanisme
Non
Dans l'inventaire des locaux inexploités
Non
Objet du plan de alignement
Non
mesure de récupération
Aucune mesure judiciaire ou administrative imposée
Autorisation de lotissement
Non
Droit de préemption
Non
Destination urbaine
La zone d'habitat à caractère rural
Zone inondable
Bien immobilier situé en zone non inondable
Obligation de rénovation
Niet van toepassing/Non-applicable
En zone sensible à l'eau
Niet van toepassing/Non-applicable

Planifiez votre visite lors Journée Maisons Ouvertes
Visitez la JOURNÉE MAISONS OUVERTES ERA et profitez de notre ‘fast lane expérience’ ! L’inscription n’est pas obligatoire, mais elle nous permet de mieux vous informer avant et pendant votre visite.
Fermer
