
01402276
Vendu




Afficher +20 photo(s)




















Appartement
2F
1 chambre(s)
40 m² de surface habitable
E
Code du bien : 1402276
Spécifications
Caractéristiques
Général
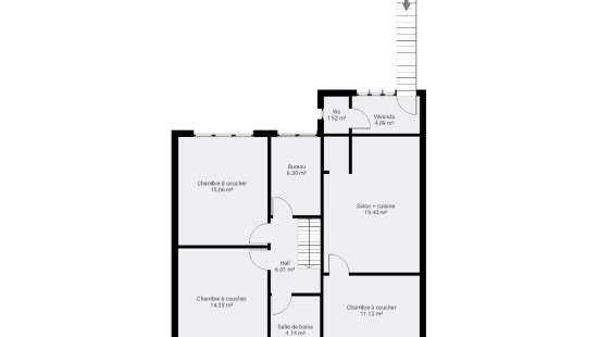
Surface habitable
40.00m²
Surface exploitable
37.00m²
Type de superficie
Brut
Environnement
Périphérie
Centre d'habitation
A proximité d'écoles
A proximité des transports en commun
A proximité de gare ferroviaire
Garantie Confort ERA
Basic
Chauffage
Type
Chauffage central
Chauffage individuel
Radiateurs
Radiateurs
Chaudière à condensation
Chaudière
Combustible chauffage
Gaz
Divers
Menuiserie
Double vitrage
Isolation
Châssis
Eau chaude
Chauffe-eau sur chauffage central
Bâtiment
Etage
1
Nombre d'étages
1
Divers
Méthode de construction : Maçonnerie traditionnelle
Ascenseur disponible
Non
Détails
Toilette
Veranda
Cuisine
Living
Chambre à coucher
Room without title
Emplacement de garage
Garage
Informations techniques et mentions légales
Général
Patrimoine classé
Non
Repris dans l’inventaire du patrimoine
Non
Énergie et électricité
Inspection électrique
Attestation électrique - Non-Conforme
Raccordements
Gaz
Electricité
Gaz disponible dans la rue
Eau de ville
Électricité individuelle
Installation électrique moderne
Internet
Certificat PEB
Oui
Classe énergétique
E
Niveau E
E
Numéro de certificat
20250804018360
Consommation spécifique d'énergie calculée
393
Emission de CO2
72.00
Consommation totale d'énergie calculée
22574
Information urbanistique
Permis d'urbanisme
Permis accordé
obligation d'urbanisme
Non
Dans l'inventaire des locaux inexploités
Non
Objet du plan de alignement
Non
Autorisation de lotissement
Non
Droit de préemption
Non
Destination urbaine
La zone d'habitat
Zone inondable
Bien immobilier situé en zone non inondable
Obligation de rénovation
Niet van toepassing/Non-applicable
En zone sensible à l'eau
Niet van toepassing/Non-applicable
Fermer
