
Maison
2F
6 chambre(s)
166 m² de surface habitable
248 m² de surface de terrain
D
Code du bien : 1415930
Description du bien
Spécifications
Caractéristiques
Général
Surface habitable
166.00m²
Superficie du terrain
248.00m²
Surface bâtie
60.00m²
Type de superficie
Brut
Environnement
Résidentiel
Rural
A proximité d'écoles
A proximité des transports en commun
A proximité de parc
Garantie Confort ERA
Basic
Chauffage
Type
Chauffage central
Radiateurs
Radiateurs
Poêle à pellet
Combustible chauffage
Mazout
Pellets
Divers
Menuiserie
PVC
Double vitrage
Isolation
Vitrage
Châssis
Isolation de toit
Eau chaude
Boiler électrique
Bâtiment
Nombre d'étages
2
Divers
Stores
Ascenseur disponible
Non
Détails
Chambre à coucher
Chambre à coucher
Chambre à coucher
Chambre à coucher
Hall d'entrée
Living
Salle à manger
Cuisine
Terrasse
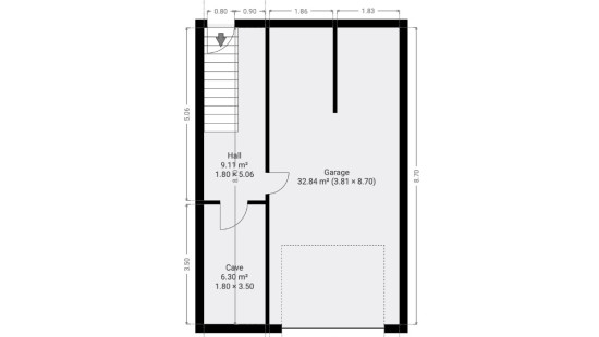
Cave
Jardin
Garage
Chambre à coucher
Chambre à coucher
Informations techniques et mentions légales
Général
Patrimoine classé
Non
Repris dans l’inventaire du patrimoine
Non
Énergie et électricité
Inspection électrique
Attestation électrique - Conforme
Raccordements
Gaz
Raccordements aux égouts
Eau de ville
Installation électrique moderne
Certificat PEB
Oui
Classe énergétique
D
Niveau E
D
Numéro de certificat
20251006031122
Consommation spécifique d'énergie calculée
315
Emission de CO2
52384.00
Consommation totale d'énergie calculée
52384
Information urbanistique
Permis d'urbanisme
Permis accordé
obligation d'urbanisme
Oui
Dans l'inventaire des locaux inexploités
Non
Objet du plan de alignement
Non
Autorisation de lotissement
Non
Droit de préemption
Non
Destination urbaine
La zone d'habitat à caractère rural
Zone inondable
Bien immobilier situé en zone non inondable
Obligation de rénovation
Niet van toepassing/Non-applicable
En zone sensible à l'eau
Niet van toepassing/Non-applicable
Fermer
