
Maison
2F
3 chambre(s)
1 salle(s) de bain(s)
108 m² de surface habitable
174 m² de surface de terrain
Code du bien : 1443872
Spécifications
Caractéristiques
Général
Surface habitable
108.00m²
Superficie du terrain
174.00m²
Type de superficie
Brut
Environnement
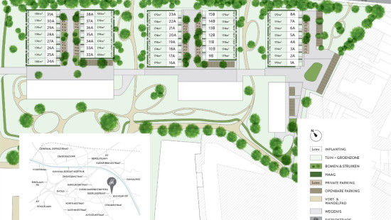
Centre
Centre d'habitation
Environnement verdoyant
A proximité d'écoles
A proximité des transports en commun
Disponible à partir de
Chauffage
Type
Chauffage central
Radiateurs
Panneau photovoltaïque
Chaudière à condensation
Combustible chauffage
Gaz
Divers
Menuiserie
PVC
Double vitrage
Vitrage super-isolant à haut rendement
Isolation
Vitrage
Isolation de toit
Eau chaude
Boiler sur chauffage central
Bâtiment
Année de construction
2024
Divers
Système d'aération
Ascenseur disponible
Non
Panneaux solaires
Panneaux solaires
Panneaux solaires - Inclus dans le prix
Détails
Hall d'entrée
Toilette
Living
Salle à manger
Cuisine
Hall de nuit
Toilette
Chambre à coucher
Chambre à coucher
Chambre à coucher
Salle de bains
Débarras
Terrasse
Jardin
Informations techniques et mentions légales
Général
Patrimoine classé
Non
Repris dans l’inventaire du patrimoine
Non
Énergie et électricité
Raccordements
Gaz
Réservoir eau de pluie
Raccordements aux égouts
Télédistribution
Panneaux photovoltaiques
Eau de ville
Électricité avec plombs automatiques
Chauffage: Tarif de jour/nuit
Internet
Certificat PEB
Demandé
Classe énergétique
-
Information urbanistique
Permis d'urbanisme
Permis non accordé
obligation d'urbanisme
Non
Dans l'inventaire des locaux inexploités
Non
Objet du plan de alignement
Non
Autorisation de lotissement
Non
Droit de préemption
Non
Zone inondable
Bien immobilier situé en zone non inondable
Obligation de rénovation
Niet van toepassing/Non-applicable
En zone sensible à l'eau
Niet van toepassing/Non-applicable
Fermer


























