
Commerce
2F
50 m² de surface habitable
50 m² de surface de terrain
Code du bien : 1455891
Description du bien
Spécifications
Caractéristiques
Général
Surface habitable
50.00m²
Superficie du terrain
50.00m²
Type de superficie
Brut
Environnement
Centre
Chauffage
Type
Non précisé
Radiateurs
Non précisé
Combustible chauffage
Non précisé
Divers
Menuiserie
Non précisé
Isolation
Non précisé
Eau chaude
Boiler électrique
Bâtiment
Ascenseur disponible
Non
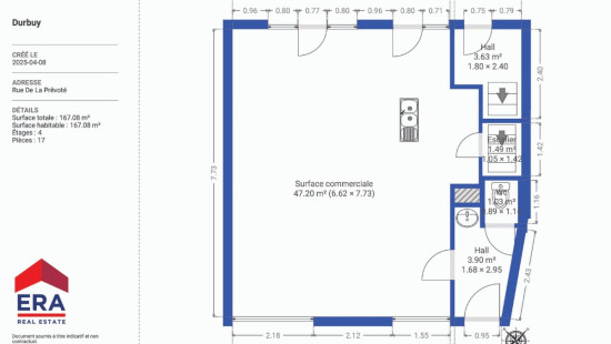
Détails
Espace commercial
Hall
Toilette
Cave
Informations techniques et mentions légales
Général
Patrimoine classé
Non
Repris dans l’inventaire du patrimoine
Non
Énergie et électricité
Raccordements
Electricité
Eau de ville
Classe énergétique
-
Information urbanistique
Permis d'urbanisme
Bien construit avant 1962
obligation d'urbanisme
Non
Dans l'inventaire des locaux inexploités
Non
Objet du plan de alignement
Non
mesure de récupération
Aucune mesure judiciaire ou administrative imposée
Autorisation de lotissement
Non
Droit de préemption
Non
Zone inondable
Bien immobilier situé en zone non inondable
Obligation de rénovation
Niet van toepassing/Non-applicable
En zone sensible à l'eau
Niet van toepassing/Non-applicable
Fermer












