
Maison 3 chambres à Vaux-sur-Sûre
€ 300 000
Journée Maisons Ouvertes le 06/12 de 11:00 à 12:00




Afficher +11 photo(s)











Maison
4F
3 chambre(s)
2 salle(s) de bain(s)
184 m² de surface habitable
1,019 m² de surface de terrain
C
Code du bien : 1434345
Description du bien
Spécifications
Caractéristiques
Général
Surface habitable
184.03m²
Superficie du terrain
1019.00m²
Surface bâtie
206.79m²
Largeur du terrain
20.00m
Type de superficie
Brut
Orientation terrain
Nord
Façade orientation
Sud
Environnement
Environnement verdoyant
Rural
A proximité d'écoles
A proximité des transports en commun
Routes d'acces
Revenu cadastral net
€903,00
Chauffage
Type
Chauffage central
Radiateurs
Chaudière
Combustible chauffage
Mazout
Divers
Menuiserie
Bois
Double vitrage
Isolation
Détails sur demande
Eau chaude
Boiler sur chauffage central
Bâtiment
Année de construction
1986
Ascenseur disponible
Non
Détails
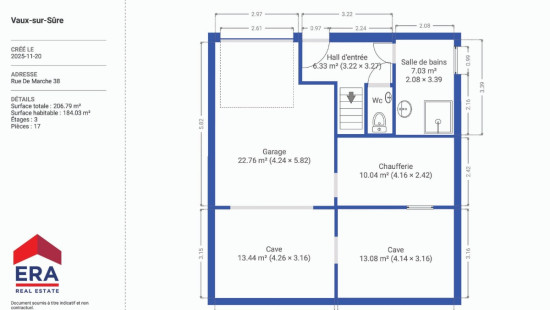
Hall d'entrée
Toilette
Salle de bains
Chaufferie
Garage
Cave
Cave
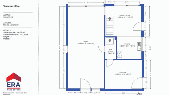
Salle à manger
Cuisine
Hall
Chambre à coucher
Living
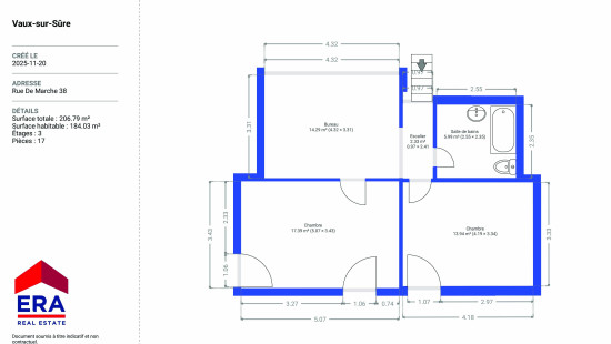
Bureau
Salle de bains
Chambre à coucher
Chambre à coucher
Jardin
Informations techniques et mentions légales
Général
Patrimoine classé
Non
Repris dans l’inventaire du patrimoine
Non
Énergie et électricité
Inspection électrique
Attestation électrique demandée
Raccordements
Electricité
Raccordements aux égouts
Eau de ville
Certificat PEB
Oui
Classe énergétique
C
Niveau E
C
Information urbanistique
obligation d'urbanisme
Oui
Dans l'inventaire des locaux inexploités
Non
Objet du plan de alignement
Non
Autorisation de lotissement
Non
Droit de préemption
Non
Zone inondable
Bien immobilier situé en zone non inondable
Obligation de rénovation
Niet van toepassing/Non-applicable
En zone sensible à l'eau
Niet van toepassing/Non-applicable
Fermer
