Appartement neuf à Roosdaal

Vendu

6 % TVA sous conditions

Description du bien

Tout près du centre de Roosdaal, un tout nouveau projet immobilier à petite échelle et élégant voit le jour. Le Pamelse Poort. Économe en énergie, situé au calme et à proximité de tout. Un mélange attrayant d'habitat tourné vers l'avenir, entièrement à votre goût !
 
Chaque appartement est équipé de série de grandes fenêtres, de matériaux de qualité et d'un score BEN économe en énergie. Vous décidez vous-même de la disposition des pièces et des finitions, du sol à l'éclairage.
 
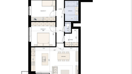
Aménagement de l'appartement B03
Le hall d'entrée donne accès à 2 chambres, des toilettes séparées, une salle de bains, un débarras/buanderie et un salon spacieux. Le salon donne accès à une grande terrasse.
Place(s) de parking et débarras à acheter séparément.
 
Ce projet est éligible à la TVA à 6 %.
Livraison prévue pour l'été 2027.
 
Intéressé ? N'hésitez pas à nous contacter pour prendre rendez-vous.

Spécifications

Caractéristiques

Général

Surface habitable
101.40m²
Superficie du terrain
2160.00m²
Type de superficie
Brut
Orientation terrain
Ouest
Façade orientation
Sud
Environnement
Centre
Centre d'habitation
Environnement verdoyant
Résidentiel
Rural
A proximité des transports en commun

Chauffage

Type
Chauffage central
Radiateurs
Chauffage par le sol
Combustible chauffage
Panneaux solaires
Pompe à chaleur (géothermique)

Divers

Menuiserie
Aluminium
Double vitrage
Isolation
Voir cahier des charges
Eau chaude
Pompe à chaleur

Bâtiment

Année de construction
2025
Etage
1
Nombre d'étages
2
Divers
Vidéophone
Système d'aération
Ascenseur disponible
Oui

Panneaux solaires

Panneaux solaires
Panneaux solaires - Inclus dans le prix

Hall d'entrée

Surface calculée
0 m²
Largeur
0

Toilette

Surface calculée
0 m²
Largeur
0

Débarras

Surface calculée
0 m²
Largeur
0

Salle de bains

Surface calculée
0 m²
Largeur
0
Objets de la chambre
Evier simple
Douche
Bain

Chambre à coucher

Surface calculée
0 m²
Largeur
0
1 chambre(s) possible(s)

Chambre à coucher

Surface calculée
0 m²
Largeur
0
1 chambre(s) possible(s)

Living

Surface calculée
0 m²
Largeur
0

Cuisine

Surface calculée
0 m²
Largeur
0

Terrasse

Surface calculée
13 m²
Largeur
0

Général

Patrimoine classé
Non
Repris dans l’inventaire du patrimoine
Non

Énergie et électricité

Inspection électrique
Attestation électrique - Conforme
Raccordements
Electricité
Réservoir eau de pluie
Raccordements aux égouts
Télédistribution
Panneaux photovoltaiques
Eau de ville
Téléphone
Internet
Système au égouts séparé
Classe énergétique
-

Information urbanistique

Permis d'urbanisme
Permis accordé
obligation d'urbanisme
Non
Dans l'inventaire des locaux inexploités
Non
Objet du plan de alignement
Non
Autorisation de lotissement
Non
Droit de préemption
Non
Destination urbaine
La zone d'habitat;Woongebied
Zone inondable
Bien immobilier situé en zone non inondable
Obligation de rénovation
Niet van toepassing/Non-applicable
En zone sensible à l'eau
Niet van toepassing/Non-applicable
Sam Taelemans